Запчасти Komatsu D85E-SS-2-E ТОЛКАЮЩ. РАМА РАБОЧЕЕ ОБОРУДОВАНИЕ

Схема запчастей Komatsu D85E-SS-2-E - ТОЛКАЮЩ. РАМА РАБОЧЕЕ ОБОРУДОВАНИЕ
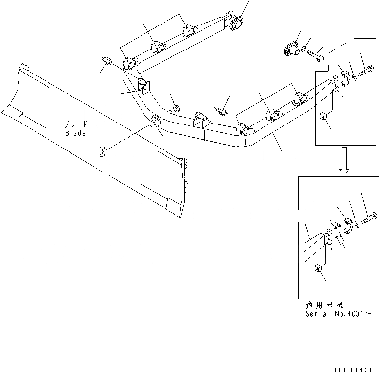
1
1
2
3
4
5
6
7
8
8
9
9
10
10
11
11
12
12
12A
12A
13
13
14
14
15
16
8
8
9
9
10
10
11
11
12
12
12A
12A
FIT
1:1
100%

Артикул

Название

Примечание

Количество

|1

14U-70-00011

C-FRAME ASS'Y

SN: 3265-UP

1шт.

|1

14U-70-00010

C-FRAME ASS'Y

SN: 3034-3264

1шт.

1

0

FRAME

SN: 3265-UP

1шт.

|1

0

FRAME

SN: 3034-3264

1шт.

2

14U-70-12520

PIN

SN: 3265-UP

1шт.

|2

14U-70-12120

PIN

SN: 3034-3264

1шт.

3

14U-70-12151

BRACKET,L.H. (WELDED)

SN: 3034-UP

1шт.

4

14U-70-12160

BRACKET,R.H. (WELDED)

SN: 3034-UP

1шт.

5

154-70-13134

BRACKET,L.H. (WELDED)

SN: 3034-UP

3шт.

6

154-70-13124

BRACKET,R.H. (WELDED)

SN: 3034-UP

3шт.

7

140-70-12530

COLLAR (WELDED)

SN: 3265-UP

1шт.

|7

140-70-13130

COLLAR (WELDED)

SN: 3034-3264

1шт.

8

0

PIVOT,(WELDED) (KIT)

SN: 3034-UP

2шт.

9

14Y-71-22150

CAP (KIT)

SN: 4001-UP

2шт.

|9

14Y-71-12150

CAP (KIT)

SN: 3034-4000

2шт.

10

01011-82465

BOLT (KIT)

SN: 3034-UP

4шт.

11

01643-32460

WASHER (KIT)

SN: 3034-UP

4шт.

12

130-70-13241

NUT (KIT)

SN: 3034-UP

4шт.

12A

14Y-71-22280

SHIM¤ T=1.0 (KIT)

SN: 4001-UP

40шт.

13

07020-00000

FITTING,GREASE

SN: 3034-UP

2шт.

14

14Z-71-33211

TRUNNION

SN: 4173-UP

2шт.

|14

14Y-71-13211

TRUNNION

SN: 3034-4172

2шт.

15

01010-82065

BOLT

SN: 3034-UP

16шт.

16

01643-32060

WASHER

SN: 3034-UP

16шт.

|$$25

SERVICE PARTS

-1шт.

|1

14X-70-00071

PIVOT ASS'Y

SN: 4001-UP

2шт.

|1

14X-70-00070

PIVOT ASS'Y

SN: 3034-4000

2шт.

8

0

PIVOT (WELDED)

SN: 3034-UP

1шт.

9

14Y-71-22150

CAP

SN: 4001-UP

1шт.

|9

14Y-71-12150

CAP

SN: 3034-4000

1шт.

10

01011-82465

BOLT

SN: 3034-UP

2шт.

11

01643-32460

WASHER

SN: 3034-UP

2шт.

12

130-70-13241

NUT

SN: 3034-UP

2шт.

12A

14Y-71-22280

SHIM¤ T=1.0

SN: 4001-UP

20шт.

Выбрано товаров: 34