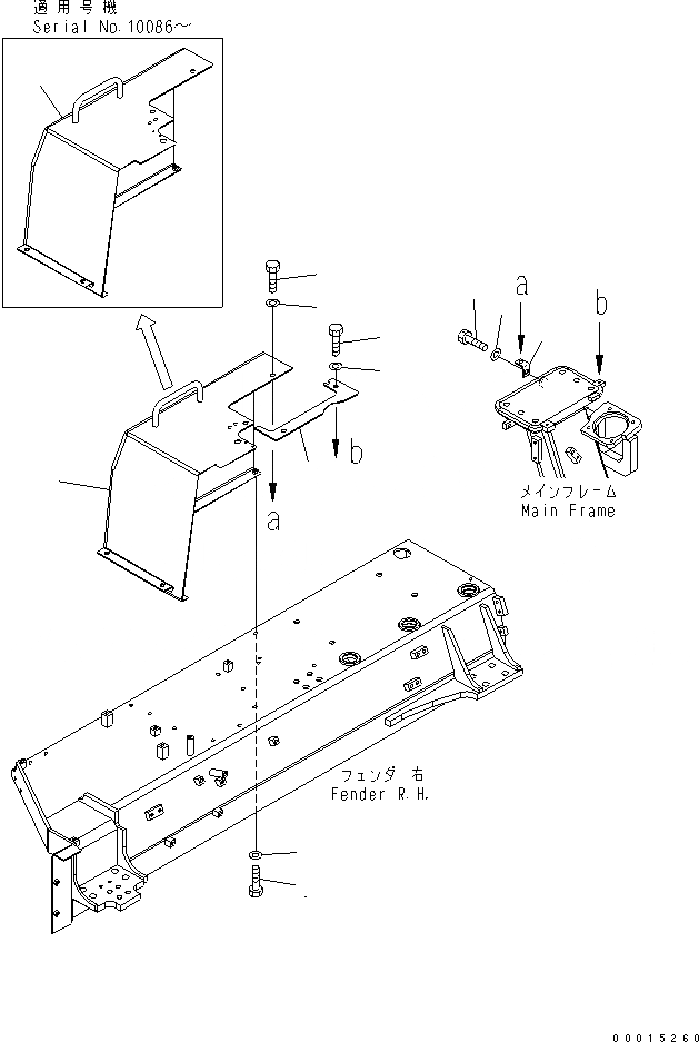
Запчасти Komatsu D85EX-15 КРЫШКА КРЫЛА (ПРАВ.) (АНТИВАНДАЛЬН.) ЧАСТИ КОРПУСА

Схема запчастей Komatsu D85EX-15 - КРЫШКА КРЫЛА (ПРАВ.) (АНТИВАНДАЛЬН.) ЧАСТИ КОРПУСА
1
1
2
3
4
5
6
6
6
7
7
7
FIT
1:1
100%

Артикул

Название

Примечание

Количество

1

154-54-74222

COVER,R.H.

SN: 10580-UP

1шт.

1

0

COVER,R.H.

SN: 10086-10579

1шт.

1

154-54-74220

COVER,R.H.

SN: 10001-10085

1шт.

2

154-54-74370

BRACKET

SN: 10086-UP

2шт.

3

01010-81230

BOLT

SN: 10086-UP

4шт.

4

01643-31232

WASHER

SN: 10086-UP

4шт.

5

154-54-74172

COVER,R.H.

SN: 10086-UP

1шт.

5

154-54-74171

COVER,R.H.

SN: 10001-10085

1шт.

6

01010-81230

BOLT

SN: 10001-UP

6шт.

7

01643-31232

WASHER

SN: 10001-UP

6шт.

Выбрано товаров: 10