Запчасти Komatsu D85P-21-EP КОНДИЦ. И КРЫШКА АККУМУЛЯТОРА ЧАСТИ КОРПУСА

Схема запчастей Komatsu D85P-21-EP - КОНДИЦ. И КРЫШКА АККУМУЛЯТОРА ЧАСТИ КОРПУСА
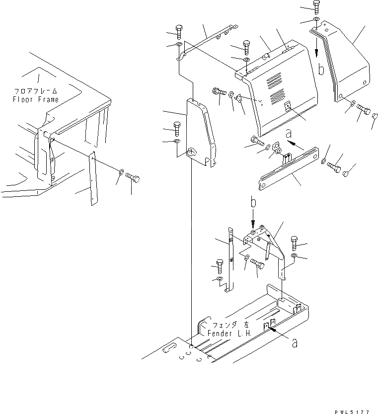
1
1A
1B
2
3
4
5
6
7
7
8
8
9
10
11
12
13
14
15
16
17
18
19
20
20
21
21
22
23
24
25
26
27
28
29
29
30
30
FIT
1:1
100%

Артикул

Название

Примечание

Количество

1

154-54-46111

COVER

SN: 3689-UP

1шт.

1A

09455-11023

HINGE (WELDED)

SN: 3689-UP

2шт.

1B

195-54-42200

LOCK ASS'Y (WELDED)

SN: 3689-UP

1шт.

2

198-54-19150

SPRING

SN: 3689-UP

1шт.

3

01010-80612

BOLT

SN: 3689-UP

2шт.

4

01643-30623

WASHER

SN: 3689-UP

2шт.

5

198-54-41941

CAP

SN: 3689-UP

2шт.

6

154-54-46172

COVER

SN: 3689-UP

1шт.

7

195-54-43210

BOLT

SN: 3689-UP

4шт.

8

198-54-42280

WASHER

SN: 3689-UP

4шт.

9

01010-81230

BOLT

SN: 3689-UP

2шт.

10

124-54-26540

WASHER

SN: 3689-UP

2шт.

11

154-54-46210

COVER

SN: 3689-UP

1шт.

12

198-54-41941

CAP

SN: 3689-UP

2шт.

13

01010-81225

BOLT

SN: 3689-UP

3шт.

14

01643-31232

WASHER

SN: 3689-UP

3шт.

15

154-54-46121

COVER

SN: 3689-UP

1шт.

16

154-54-46150

BRACKET ASS'Y

SN: 3689-UP

1шт.

17

01010-81230

BOLT

SN: 3689-UP

2шт.

18

01643-31232

WASHER

SN: 3689-UP

2шт.

19

154-54-46220

BRACKET

SN: 3689-UP

1шт.

20

01010-81230

BOLT

SN: 3689-UP

4шт.

21

01643-31232

WASHER

SN: 3689-UP

4шт.

22

154-54-46132

FRAME

SN: 3689-UP

1шт.

23

01010-81230

BOLT

SN: 3689-UP

2шт.

24

01643-31232

WASHER

SN: 3689-UP

2шт.

25

154-54-46140

BRACKET

SN: 3689-UP

1шт.

26

01010-81230

BOLT

SN: 3689-UP

2шт.

27

01643-31232

WASHER

SN: 3689-UP

2шт.

28

154-54-46161

BRACKET

SN: 3689-UP

1шт.

29

01010-81230

BOLT

SN: 3689-UP

4шт.

30

01643-31232

WASHER

SN: 3689-UP

4шт.

Выбрано товаров: 32