Запчасти Komatsu D85PX-15 ДВИГАТЕЛЬ НИЖН. КРЫШКА(ПЕСЧАН. ЗАПЫЛЕНН МЕСТН. И СПЕЦИФ-Я С ЗАЩИТОЙ ОТ СОЛИ)(№7-) ЧАСТИ КОРПУСА

Схема запчастей Komatsu D85PX-15 - ДВИГАТЕЛЬ НИЖН. КРЫШКА(ПЕСЧАН. ЗАПЫЛЕНН МЕСТН. И СПЕЦИФ-Я С ЗАЩИТОЙ ОТ СОЛИ)(№7-) ЧАСТИ КОРПУСА
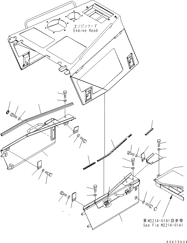
1
2
3
4
4
5
5
6
7
8
9
10
11
12
13
14
15
16
17
18
19
20
21
22
23
24
25
25
26
26
27
28
28
29
29
30
FIT
1:1
100%

Артикул

Название

Примечание

Количество

1

154-54-78240

COVER,L.H.

SN: 1147-UP

1шт.

2

154-54-78290

HINGE (WELDED)

SN: 1147-UP

2шт.

3

154-54-78310

SHEET (BONDED)

SN: 1147-UP

1шт.

4

01010-81230

BOLT

SN: 1147-UP

2шт.

5

01643-31232

WASHER

SN: 1147-UP

2шт.

6

154-54-72521

PLATE

SN: 1147-UP

1шт.

7

01010-81230

BOLT

SN: 1147-UP

2шт.

8

01643-31232

WASHER

SN: 1147-UP

2шт.

9

154-54-72580

SEAL

SN: 1147-UP

1шт.

10

154-54-72591

SEAL

SN: 1147-UP

1шт.

11

01010-81230

BOLT

SN: 1147-UP

2шт.

12

01643-31232

WASHER

SN: 1147-UP

2шт.

13

195-54-42981

CAP

SN: 1147-UP

2шт.

14

154-54-72451

COVER

SN: 1147-UP

1шт.

15

154-54-72511

PLATE

SN: 1147-UP

1шт.

16

01010-81230

BOLT

SN: 1147-UP

2шт.

17

01643-31232

WASHER

SN: 1147-UP

2шт.

18

154-54-72610

SEAL

SN: 1147-UP

1шт.

19

01010-81230

BOLT

SN: 1147-UP

2шт.

20

01643-31232

WASHER

SN: 1147-UP

2шт.

21

154-54-78250

COVER,R.H.

SN: 1147-UP

1шт.

22

154-54-78320

SHEET (BONDED)

SN: 1147-UP

1шт.

23

154-54-72511

PLATE

SN: 1147-UP

1шт.

24

154-54-72521

PLATE

SN: 1147-UP

1шт.

25

01010-81230

BOLT

SN: 1147-UP

4шт.

26

01643-31232

WASHER

SN: 1147-UP

4шт.

27

154-54-72570

SEAL

SN: 1147-UP

1шт.

28

01010-81230

BOLT

SN: 1147-UP

3шт.

29

01643-31232

WASHER

SN: 1147-UP

3шт.

30

195-54-42981

CAP

SN: 1147-UP

2шт.

Выбрано товаров: 30