Запчасти Komatsu D85PX-15 КОНДИЦ.DENSER СИСТЕМА ОХЛАЖДЕНИЯ

Схема запчастей Komatsu D85PX-15 - КОНДИЦ.DENSER СИСТЕМА ОХЛАЖДЕНИЯ
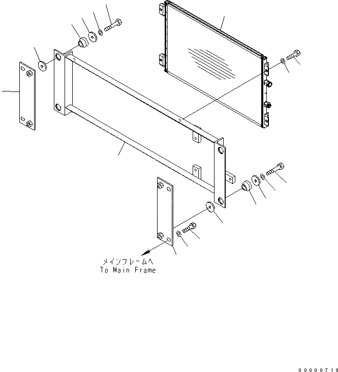
1
2
3
4
5
5
6
6
7
7
8
8
9
9
9
9
10
11
FIT
1:1
100%

Артикул

Название

Примечание

Количество

1

20Y-979-6131

CONDENSER ASS'Y

SN: 1001-UP

1шт.

2

154-911-7811

BRACKET

SN: 1001-UP

1шт.

3

01010-80816

BOLT

SN: 1001-UP

4шт.

4

01643-30823

WASHER

SN: 1001-UP

4шт.

5

154-911-7831

PLATE

SN: 1001-UP

1шт.

6

01010-81060

BOLT

SN: 1001-UP

4шт.

7

01643-31032

WASHER

SN: 1001-UP

4шт.

8

195-03-41380

CUSHION

SN: 1001-UP

4шт.

9

178-60-12250

COLLAR

SN: 1001-UP

8шт.

10

01010-81230

BOLT

SN: 1001-UP

4шт.

11

01643-31232

WASHER

SN: 1001-UP

4шт.

Выбрано товаров: 11