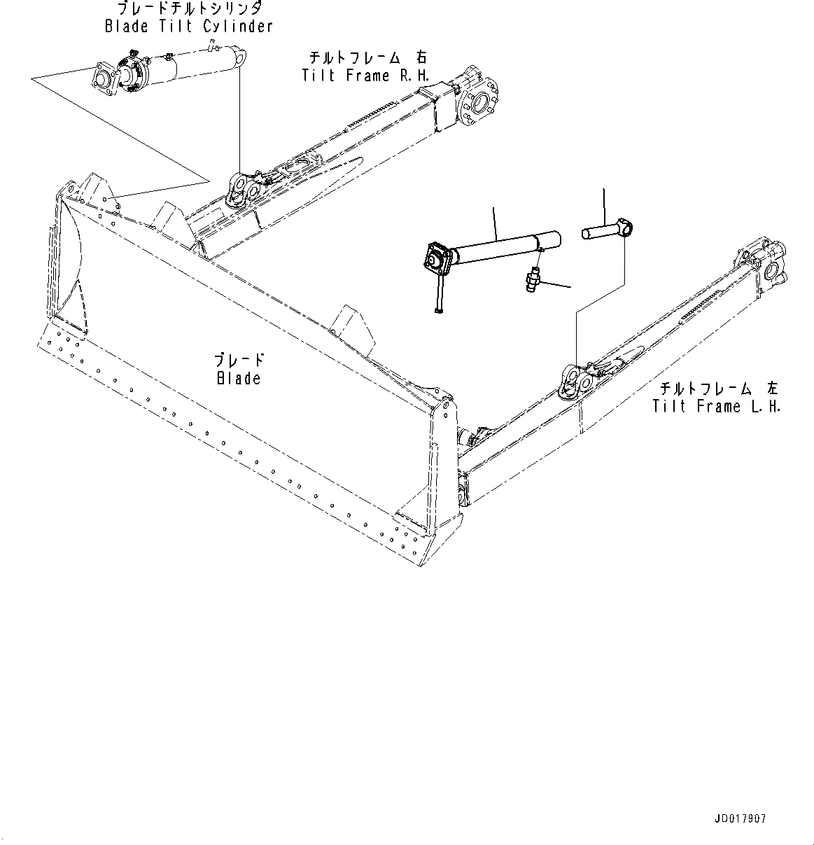
Запчасти Komatsu D85PX-15E0 DOZER ЦИЛИНДР ПЕРЕКОСА ОТВАЛА, БАЛКА (№9-) DOZER ЦИЛИНДР ПЕРЕКОСА ОТВАЛА, ПРЯМ. ОТВАЛ ПОЛУ U ИЛИ U DOZER

Схема запчастей Komatsu D85PX-15E0 - DOZER ЦИЛИНДР ПЕРЕКОСА ОТВАЛА, БАЛКА (№9-) DOZER ЦИЛИНДР ПЕРЕКОСА ОТВАЛА, ПРЯМ. ОТВАЛ ПОЛУ U ИЛИ U DOZER
1
2
3
FIT
1:1
100%

Артикул

Название

Примечание

Количество

1

154-71-21531

Screw

SN: 11609-UP

1шт.

2

07020-00000

Fitting, Grease

SN: 11609-UP

1шт.

3

154-71-22371

Brace

SN: 11609-UP

1шт.

Выбрано товаров: 3