Запчасти Komatsu D85PX-15E0 РАДИАТОР (РАМА)(№-) СИСТЕМА ОХЛАЖДЕНИЯ

Схема запчастей Komatsu D85PX-15E0 - РАДИАТОР (РАМА)(№-) СИСТЕМА ОХЛАЖДЕНИЯ
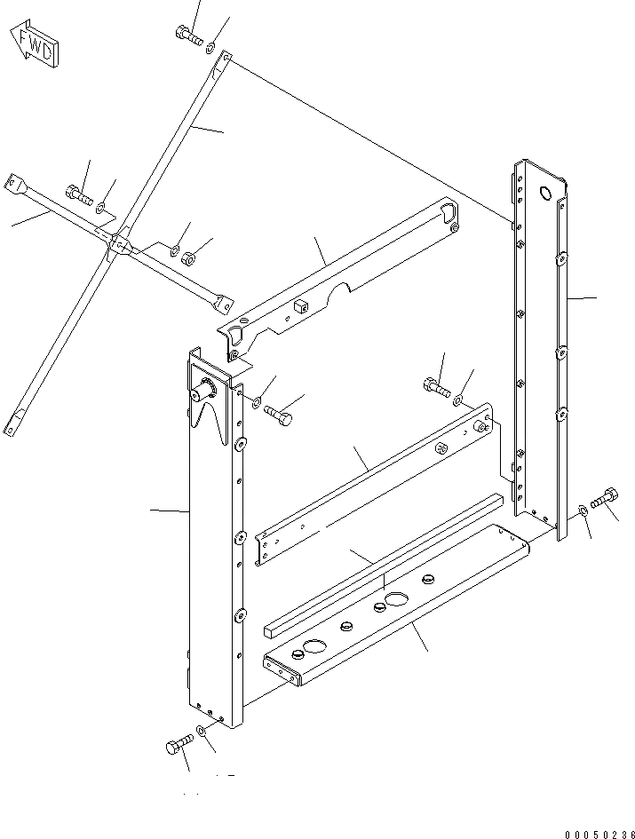
1
2
3
4
5
6
7
8
9
10
11
11
12
12
13
13
14
15
16
17
18
19
FIT
1:1
100%

Артикул

Название

Примечание

Количество

1

154-03-76412

BRACKET,L.H.

SN: 1206-UP

1шт.

2

154-03-76422

BRACKET,R.H.

SN: 1206-UP

1шт.

3

154-03-75371

BRACKET

SN: 1201-UP

1шт.

4

01010-81225

BOLT

SN: 1201-UP

4шт.

5

01643-31232

WASHER

SN: 1201-UP

4шт.

6

154-03-75381

BRACKET

SN: 1201-UP

1шт.

7

01010-81225

BOLT

SN: 1201-UP

2шт.

8

01643-31232

WASHER

SN: 1201-UP

2шт.

9

154-03-75651

BRACKET

SN: 1201-UP

1шт.

10

154-03-76121

SEAL

SN: 1201-UP

1шт.

11

01010-81225

BOLT

SN: 1201-UP

6шт.

12

01643-31232

WASHER

SN: 1201-UP

6шт.

13

154-03-75391

PIPE

SN: 1201-UP

2шт.

14

01010-81225

BOLT

SN: 1201-UP

4шт.

15

01643-31232

WASHER

SN: 1201-UP

4шт.

16

01010-81235

BOLT

SN: 1201-UP

1шт.

17

01643-31232

WASHER

SN: 1201-UP

1шт.

18

01643-31232

WASHER

SN: 1201-UP

1шт.

19

01580-01210

NUT

SN: 1201-UP

1шт.

Выбрано товаров: 19