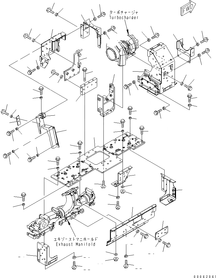
Запчасти Komatsu SAA6D125E-5C-02 ТЕРМОЗАЩИТА (/) (ДЛЯ EX. КОЛЛЕКТОР И TURBO.) (LANDFILL СПЕЦ-Я.)(№9-) ДВИГАТЕЛЬ

Схема запчастей Komatsu SAA6D125E-5C-02 - ТЕРМОЗАЩИТА (/) (ДЛЯ EX. КОЛЛЕКТОР И TURBO.) (LANDFILL СПЕЦ-Я.)(№9-) ДВИГАТЕЛЬ
1
2
3
4
5
6
7
8
9
10
10
11
12
13
14
15
16
17
18
19
20
20
20
21
22
22
22
23
24
25
26
27
28
29
30
31
32
32
32
32
32
33
33
33
33
33
33
34
35
36
37
38
38
39
40
41
42
43
44
45
46
46
46
46
47
47
47
47
48
49
49
50
51
52
53
54
54
55
55
1
2
3
4
5
6
7
8
9
10
10
11
12
13
14
15
16
17
18
19
20
20
20
21
22
22
22
23
24
25
26
27
28
29
30
31
32
32
32
32
32
33
33
33
33
33
33
34
35
36
37
38
38
39
40
41
42
43
44
45
46
46
46
46
47
47
47
47
48
49
49
50
51
52
53
54
54
55
55
FIT
1:1
100%

Артикул

Название

Примечание

Количество

1

6251-11-8390

COVER,EXHAUST MANIFOLD

SN: 562934-UP

1шт.

2

01435-01035

BOLT

SN: 562934-UP

9шт.

3

419-15-17540

SPACER

SN: 562934-UP

9шт.

4

6251-11-8410

COVER

SN: 562934-UP

1шт.

5

01435-01040

BOLT

SN: 562934-UP

2шт.

6

419-15-17540

SPACER

SN: 562934-UP

2шт.

7

01643-31032

WASHER

SN: 562934-UP

2шт.

8

01584-01008

NUT

SN: 562934-UP

2шт.

9

6251-11-8420

COVER,FRONT

SN: 562934-UP

1шт.

10

01435-01035

BOLT

SN: 562934-UP

4шт.

11

419-15-17540

SPACER

SN: 562934-UP

2шт.

12

6164-11-9190

SPACER

SN: 562934-UP

2шт.

13

6251-11-8430

COVER,EXHAUST MANIFOLD

SN: 562934-UP

1шт.

14

01435-01040

BOLT

SN: 562934-UP

6шт.

15

419-15-17540

SPACER

SN: 562934-UP

6шт.

16

01643-31032

WASHER

SN: 562934-UP

6шт.

17

01584-01008

NUT

SN: 562934-UP

6шт.

18

01435-01035

BOLT

SN: 562934-UP

3шт.

19

01435-01050

BOLT

SN: 562934-UP

2шт.

20

6164-11-9190

SPACER

SN: 562934-UP

4шт.

21

6251-11-8440

COVER,REAR

SN: 562934-UP

1шт.

22

01435-01035

BOLT

SN: 562934-UP

4шт.

23

419-15-17540

SPACER

SN: 562934-UP

3шт.

24

6251-11-8550

COVER

SN: 562934-UP

1шт.

25

01435-01030

BOLT

SN: 562934-UP

4шт.

26

6164-11-9190

SPACER

SN: 562934-UP

4шт.

27

6251-11-8470

BRACKET

SN: 562934-UP

1шт.

28

01435-01040

BOLT

SN: 562934-UP

3шт.

29

6155-11-5450

PLATE

SN: 562934-UP

1шт.

30

01436-01000

BOLT

SN: 562934-UP

3шт.

31

6251-11-8450

COVER,TURBOCHARGER

SN: 562934-UP

1шт.

32

01435-01030

BOLT

SN: 562934-UP

13шт.

33

6164-11-9190

SPACER

SN: 562934-UP

13шт.

34

6251-11-8480

BRACKET

SN: 562934-UP

1шт.

35

01435-01035

BOLT

SN: 562934-UP

4шт.

36

6164-11-9190

SPACER

SN: 562934-UP

4шт.

37

6251-11-8460

COVER,TURBOCHARGER

SN: 562934-UP

1шт.

38

6164-11-9190

SPACER

SN: 562934-UP

3шт.

39

6164-11-9190

SPACER

SN: 562934-UP

7шт.

40

6251-11-8530

COVER,REAR

SN: 562934-UP

1шт.

41

01435-01045

BOLT

SN: 562934-UP

1шт.

42

01435-01030

BOLT

SN: 562934-UP

6шт.

43

419-15-17540

SPACER

SN: 562934-UP

2шт.

44

6251-11-8540

COVER,REAR

SN: 562934-UP

1шт.

45

6251-11-8710

BRACKET

SN: 562934-UP

1шт.

46

01435-01030

BOLT

SN: 562934-UP

5шт.

47

419-15-17540

SPACER

SN: 562934-UP

5шт.

48

6251-11-8520

COVER,FRONT

SN: 562934-UP

1шт.

49

01435-01045

BOLT

SN: 562934-UP

3шт.

50

6164-11-9190

SPACER

SN: 562934-UP

2шт.

51

6251-11-8510

COVER,FRONT

SN: 562934-UP

1шт.

52

01435-01045

BOLT

SN: 562934-UP

3шт.

53

01435-01040

BOLT

SN: 562934-UP

2шт.

54

01435-01030

BOLT

SN: 562934-UP

3шт.

55

6164-11-9190

SPACER

SN: 562934-UP

6шт.

1

6251-11-8390

COVER,EXHAUST MANIFOLD

SN: 562934-UP

1шт.

2

01435-01035

BOLT

SN: 562934-UP

9шт.

3

419-15-17540

SPACER

SN: 562934-UP

9шт.

4

6251-11-8410

COVER

SN: 562934-UP

1шт.

5

01435-01040

BOLT

SN: 562934-UP

2шт.

6

419-15-17540

SPACER

SN: 562934-UP

2шт.

7

01643-31032

WASHER

SN: 562934-UP

2шт.

8

01584-01008

NUT

SN: 562934-UP

2шт.

9

6251-11-8420

COVER,FRONT

SN: 562934-UP

1шт.

10

01435-01035

BOLT

SN: 562934-UP

4шт.

11

419-15-17540

SPACER

SN: 562934-UP

2шт.

12

6164-11-9190

SPACER

SN: 562934-UP

2шт.

13

6251-11-8430

COVER,EXHAUST MANIFOLD

SN: 562934-UP

1шт.

14

01435-01040

BOLT

SN: 562934-UP

6шт.

15

419-15-17540

SPACER

SN: 562934-UP

6шт.

16

01643-31032

WASHER

SN: 562934-UP

6шт.

17

01584-01008

NUT

SN: 562934-UP

6шт.

18

01435-01035

BOLT

SN: 562934-UP

3шт.

19

01435-01050

BOLT

SN: 562934-UP

2шт.

20

6164-11-9190

SPACER

SN: 562934-UP

4шт.

21

6251-11-8440

COVER,REAR

SN: 562934-UP

1шт.

22

01435-01035

BOLT

SN: 562934-UP

4шт.

23

419-15-17540

SPACER

SN: 562934-UP

3шт.

24

6251-11-8550

COVER

SN: 562934-UP

1шт.

25

01435-01030

BOLT

SN: 562934-UP

4шт.

26

6164-11-9190

SPACER

SN: 562934-UP

4шт.

27

6251-11-8470

BRACKET

SN: 562934-UP

1шт.

28

01435-01040

BOLT

SN: 562934-UP

3шт.

29

6155-11-5450

PLATE

SN: 562934-UP

1шт.

30

01436-01000

BOLT

SN: 562934-UP

3шт.

31

6251-11-8450

COVER,TURBOCHARGER

SN: 562934-UP

1шт.

32

01435-01030

BOLT

SN: 562934-UP

13шт.

33

6164-11-9190

SPACER

SN: 562934-UP

13шт.

34

6251-11-8480

BRACKET

SN: 562934-UP

1шт.

35

01435-01035

BOLT

SN: 562934-UP

4шт.

36

6164-11-9190

SPACER

SN: 562934-UP

4шт.

37

6251-11-8460

COVER,TURBOCHARGER

SN: 562934-UP

1шт.

38

6164-11-9190

SPACER

SN: 562934-UP

3шт.

39

6164-11-9190

SPACER

SN: 562934-UP

7шт.

40

6251-11-8530

COVER,REAR

SN: 562934-UP

1шт.

41

01435-01045

BOLT

SN: 562934-UP

1шт.

42

01435-01030

BOLT

SN: 562934-UP

6шт.

43

419-15-17540

SPACER

SN: 562934-UP

2шт.

44

6251-11-8540

COVER,REAR

SN: 562934-UP

1шт.

45

6251-11-8710

BRACKET

SN: 562934-UP

1шт.

46

01435-01030

BOLT

SN: 562934-UP

5шт.

47

419-15-17540

SPACER

SN: 562934-UP

5шт.

48

6251-11-8520

COVER,FRONT

SN: 562934-UP

1шт.

49

01435-01045

BOLT

SN: 562934-UP

3шт.

50

6164-11-9190

SPACER

SN: 562934-UP

2шт.

51

6251-11-8510

COVER,FRONT

SN: 562934-UP

1шт.

52

01435-01045

BOLT

SN: 562934-UP

3шт.

53

01435-01040

BOLT

SN: 562934-UP

2шт.

54

01435-01030

BOLT

SN: 562934-UP

3шт.

55

6164-11-9190

SPACER

SN: 562934-UP

6шт.

Выбрано товаров: 110