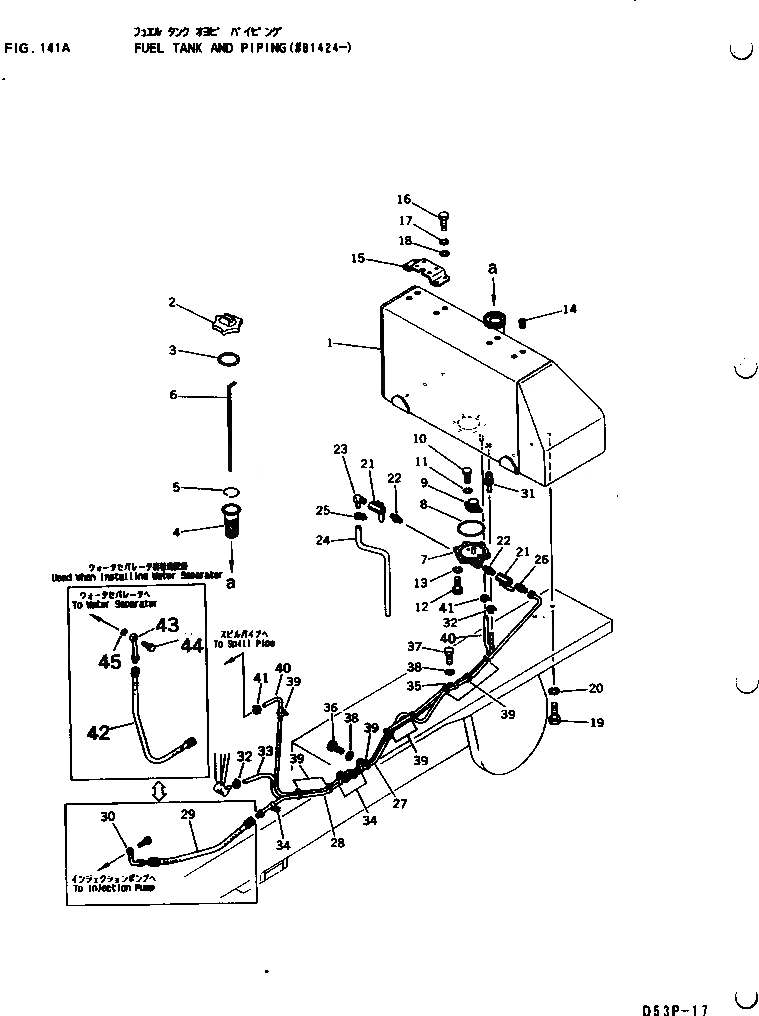
Запчасти Komatsu DDM053-1A ТОПЛ. БАК И ТОПЛИВОПРОВОД(№(88)-(8)) TОБОД КОЛЕСАMING DOZER

Схема запчастей Komatsu DDM053-1A - ТОПЛ. БАК И ТОПЛИВОПРОВОД(№(88)-(8)) TОБОД КОЛЕСАMING DOZER
FIT
1:1
100%

Артикул

Название

Примечание

Количество

|$0

130-04-00431

FUEL TANK ASS'Y

SN: (82458)-(83000)

1шт.

1

0

TANK

SN: (82458)-(83000)

1шт.

2

07050-41200

CAP

SN: (80001)-(83000)

1шт.

3

07050-21202

GASKET

SN: (80001)-(83000)

1шт.

4

07056-18416

STRAINER

SN: (80001)-(83000)

1шт.

5

07057-04087

RING,SNAP

SN: (80001)-(83000)

1шт.

6

130-04-71430

GAUGE

SN: (80001)-(83000)

1шт.

7

125-04-13110

FLANGE

SN: (80001)-(83000)

1шт.

8

07000-02135

O-RING

SN: (80001)-(83000)

1шт.

9

131-04-43130

STRAINER

SN: (80001)-(83000)

1шт.

10

01010-50812

BOLT

SN: (80001)-(83000)

2шт.

11

01602-20825

WASHER,SPRING

SN: (80001)-(83000)

2шт.

12

01010-51025

BOLT

SN: (80001)-(83000)

6шт.

13

01602-21030

WASHER,SPRING

SN: (80001)-(83000)

6шт.

14

07049-01012

PLUG

SN: (80001)-(83000)

4шт.

15

120-04-31141

BRACKET

SN: (80001)-(83000)

1шт.

16

01010-51025

BOLT

SN: (80001)-(83000)

4шт.

17

01602-21030

WASHER,SPRING

SN: (80001)-(83000)

4шт.

18

01643-31032

WASHER

SN: (80001)-(83000)

4шт.

19

01010-51435

BOLT

SN: (80001)-(83000)

6шт.

20

01602-21442

WASHER,SPRING

SN: (80001)-(83000)

6шт.

21

07700-40460

VALVE

SN: (80001)-(83000)

2шт.

22

131-04-54120

NIPPLE

SN: (80001)-(83000)

2шт.

23

131-04-54130

ELBOW

SN: (80001)-(83000)

1шт.

24

07270-01260

TUBE

SN: (80001)-(83000)

1шт.

25

07280-01620

CLAMP

SN: (80001)-(83000)

1шт.

26

131-04-54140

NIPPLE

SN: (80001)-(83000)

1шт.

27

130-04-71420

TUBE

SN: (80001)-(83000)

1шт.

28

130-04-71221

TUBE

SN: (80001)-(83000)

1шт.

29

07102-20204

HOSE

SN: (80001)-(83000)

1шт.

30

130-04-71240

TUBE

SN: (80001)-(83000)

1шт.

31

130-04-71230

NIPPLE

SN: (80001)-(83000)

1шт.

32

07281-00197

CLAMP

SN: (82458)-(83000)

2шт.

33

07288-01023

HOSE

SN: (80001)-(83000)

1шт.

34

130-04-11260

CLIP

SN: (80001)-(83000)

3шт.

35

135-04-32140

CLIP

SN: (80001)-(83000)

1шт.

36

01010-51016

BOLT

SN: (80001)-(83000)

3шт.

37

01010-51030

BOLT

SN: (80001)-(83000)

1шт.

38

01602-21030

WASHER,SPRING

SN: (80001)-(83000)

4шт.

39

08034-00519

BAND

SN: (80001)-(83000)

9шт.

40

07288-00529

HOSE

SN: (82458)-(83000)

1шт.

41

07280-01010

CLAMP

SN: (82458)-(83000)

2шт.

42

07102-20208

HOSE

SN: (80001)-(83000)

1шт.

43

130-04-71310

TUBE

SN: (80001)-(83000)

1шт.

44

07206-31014

BOLT

SN: (80001)-(83000)

1шт.

45

07005-01412

GASKET

SN: (80001)-(83000)

1шт.

Выбрано товаров: 46