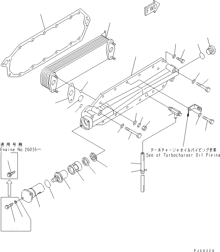
Запчасти Komatsu S6D125-1M СИСТЕМА СМАЗКИ МАСЛООХЛАДИТЕЛЬ СИСТЕМА СМАЗКИ МАСЛ. СИСТЕМА

Схема запчастей Komatsu S6D125-1M - СИСТЕМА СМАЗКИ МАСЛООХЛАДИТЕЛЬ СИСТЕМА СМАЗКИ МАСЛ. СИСТЕМА
1
2
3
4
5
5
6
7
8
9
10
11
12
13
14
15
16
17
17
18
19
20
21
22
23
24
24
24
24
25
26
27
1
2
3
4
5
5
6
7
8
9
10
11
12
13
14
15
16
17
17
18
19
20
21
22
23
24
24
24
24
25
26
27
FIT
1:1
100%

Артикул

Название

Примечание

Количество

1

6150-61-2123

COVER

SN: 19075-UP

1шт.

|1

6150-61-2122

COVER

SN: 12987-19074

1шт.

|1

6150-61-2121

COVER

SN: 11574-12986

1шт.

2

6151-61-2111

ELEMENT

SN: 11574-UP

1шт.

3

6150-61-2560

GASKET (K2)

SN: 11574-UP

2шт.

4

6150-61-2510

O-RING (K2)

SN: 11574-UP

2шт.

5

6150-61-2520

O-RING (K2)

SN: 11574-19074

4шт.

6

01582-11008

NUT

SN: 11574-UP

4шт.

7

01602-21030

WASHER,SPRING

SN: 11574-UP

4шт.

8

01640-21016

WASHER

SN: 11574-UP

4шт.

9

6150-61-2530

PLUG

SN: 11574-UP

1шт.

10

6150-61-2550

O-RING (K2)

SN: 11574-UP

1шт.

11

6150-61-2131

COVER

SN: 11574-UP

1шт.

12

6212-65-2610

THERMOSTAT

SN: 41255-UP

1шт.

|12

0

THERMOSTAT

SN: 11574-41254

1шт.

13

6150-61-2540

SEAL (K2)

SN: 11574-UP

1шт.

14

6150-61-2141

CASE

SN: 12987-UP

1шт.

|14

6150-61-2140

CASE

SN: 11574-12986

1шт.

15

6150-61-2151

PLATE

SN: 11574-UP

1шт.

16

07000-63042

O-RING (K2)

SN: 11574-UP

1шт.

17

01435-00825

BOLT

SN: 26035-UP

2шт.

|17

0

BOLT

SN: 11574-26034

2шт.

18

01640-20816

WASHER

SN: 11574-26034

2шт.

19

6150-61-2812

GASKET (K2)

SN: 23904-UP

1шт.

|19

6150-61-2812

GASKET

SN: 19953-23903

1шт.

|19

0

GASKET (K2)

SN: 11574-19952

1шт.

20

01010-51025

BOLT

SN: 11574-UP

12шт.

21

01010-51030

BOLT

SN: 12987-UP

1шт.

|21

01010-51040

BOLT

SN: 11574-12986

1шт.

22

01010-51065

BOLT

SN: 11574-UP

2шт.

23

01010-51080

BOLT

SN: 11574-UP

2шт.

24

01640-21016

WASHER

SN: 11574-UP

17шт.

25

6140-61-6512

VALVE

SN: 11574-UP

1шт.

26

07286-00875

HOSE

SN: 11574-UP

1шт.

27

08034-00414

BAND

SN: 11574-UP

1шт.

1

6150-61-2123

COVER

SN: 19075-UP

1шт.

|1

6150-61-2122

COVER

SN: 12987-19074

1шт.

|1

6150-61-2121

COVER

SN: 11574-12986

1шт.

2

6151-61-2111

ELEMENT

SN: 11574-UP

1шт.

3

6150-61-2560

GASKET (K2)

SN: 11574-UP

2шт.

4

6150-61-2510

O-RING (K2)

SN: 11574-UP

2шт.

5

6150-61-2520

O-RING (K2)

SN: 11574-19074

4шт.

6

01582-11008

NUT

SN: 11574-UP

4шт.

7

01602-21030

WASHER,SPRING

SN: 11574-UP

4шт.

8

01640-21016

WASHER

SN: 11574-UP

4шт.

9

6150-61-2530

PLUG

SN: 11574-UP

1шт.

10

6150-61-2550

O-RING (K2)

SN: 11574-UP

1шт.

11

6150-61-2131

COVER

SN: 11574-UP

1шт.

12

6212-65-2610

THERMOSTAT

SN: 41255-UP

1шт.

|12

0

THERMOSTAT

SN: 11574-41254

1шт.

13

6150-61-2540

SEAL (K2)

SN: 11574-UP

1шт.

14

6150-61-2141

CASE

SN: 12987-UP

1шт.

|14

6150-61-2140

CASE

SN: 11574-12986

1шт.

15

6150-61-2151

PLATE

SN: 11574-UP

1шт.

16

07000-63042

O-RING (K2)

SN: 11574-UP

1шт.

17

01435-00825

BOLT

SN: 26035-UP

2шт.

|17

0

BOLT

SN: 11574-26034

2шт.

18

01640-20816

WASHER

SN: 11574-26034

2шт.

19

6150-61-2812

GASKET (K2)

SN: 23904-UP

1шт.

|19

6150-61-2812

GASKET

SN: 19953-23903

1шт.

|19

0

GASKET (K2)

SN: 11574-19952

1шт.

20

01010-51025

BOLT

SN: 11574-UP

12шт.

21

01010-51030

BOLT

SN: 12987-UP

1шт.

|21

01010-51040

BOLT

SN: 11574-12986

1шт.

22

01010-51065

BOLT

SN: 11574-UP

2шт.

23

01010-51080

BOLT

SN: 11574-UP

2шт.

24

01640-21016

WASHER

SN: 11574-UP

17шт.

25

6140-61-6512

VALVE

SN: 11574-UP

1шт.

26

07286-00875

HOSE

SN: 11574-UP

1шт.

27

08034-00414

BAND

SN: 11574-UP

1шт.

Выбрано товаров: 70