Запчасти Komatsu S6D140-1G ПЕРЕДН. КРЫШКАAND ПЕРЕДН. СУППОРТ(№9-) БЛОК ЦИЛИНДРОВ

Схема запчастей Komatsu S6D140-1G - ПЕРЕДН. КРЫШКАAND ПЕРЕДН. СУППОРТ(№9-) БЛОК ЦИЛИНДРОВ
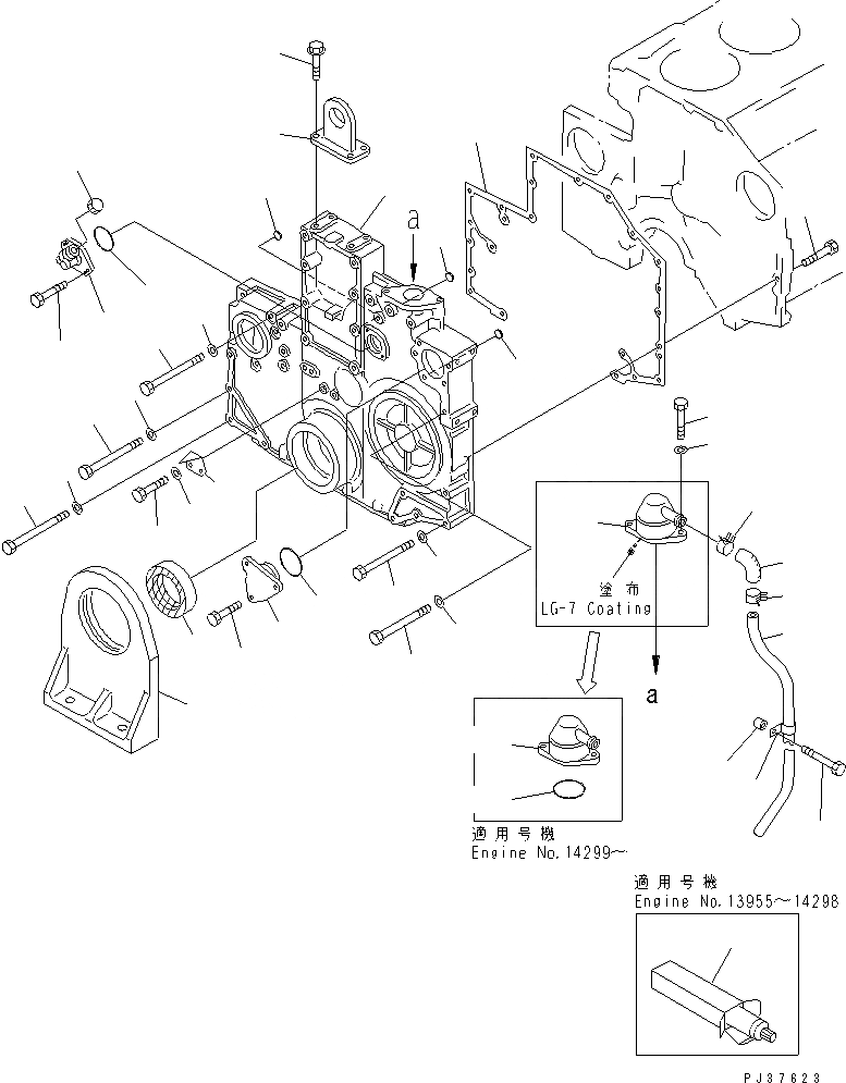
1
2
3
3
4
5
6
7
8
9
9
9
9
10
11
12
13
13
14
15
16
17
18
18
19
20
21
22
23
24
25
26
27
28
29
30
31
32
33
34
35
36
37
FIT
1:1
100%

Артикул

Название

Примечание

Количество

|1

6210-21-3200

FRONT COVER ASS'Y

SN: 11455-UP

1шт.

1

0

COVER

SN: 11455-UP

1шт.

2

07046-11816

PLUG

SN: 11455-UP

3шт.

3

07046-11516

PLUG

SN: 11455-UP

2шт.

4

6210-21-3250

GASKET (K2)

SN: 12965-UP

1шт.

5

01010-51290

BOLT

SN: 11455-UP

5шт.

6

01011-51200

BOLT

SN: 11455-UP

2шт.

7

01010-51275

BOLT

SN: 11455-UP

1шт.

8

6210-21-3190

BOLT

SN: 11455-UP

3шт.

9

01640-21223

WASHER

SN: 11455-UP

11шт.

10

01011-51000

BOLT

SN: 11455-UP

3шт.

11

01640-21016

WASHER

SN: 11455-UP

3шт.

12

01010-51045

BOLT

SN: 11455-UP

2шт.

13

6210-21-8711

BREATHER

SN: 14392-UP

1шт.

|13

0

BREATHER

SN: 11455-14391

1шт.

|$$16

(6210-21-8711{07000-62060)}

-1шт.

14

07000-62060

O-RING (K2)

SN: 14392-UP

1шт.

15

01010-51020

BOLT

SN: 11455-UP

2шт.

16

01640-21016

WASHER

SN: 11455-UP

2шт.

17

6130-61-6611

HOSE

SN: 11455-UP

1шт.

18

07285-00260

CLIP

SN: 11455-UP

2шт.

19

6210-21-8730

TUBE

SN: 11455-UP

1шт.

20

112-946-4170

CLIP

SN: 11455-UP

1шт.

21

01010-51050

BOLT

SN: 11455-UP

1шт.

22

6144-11-5630

SPACER

SN: 11455-UP

1шт.

23

6210-81-4111

BOX ASS'Y,GEAR

SN: 12966-UP

1шт.

|23

0

BOX ASS'Y,GEAR

SN: 11455-12965

1шт.

24

6136-81-5291

CAP

SN: 11455-UP

1шт.

25

07000-03050

O-RING (K2)

SN: 11455-UP

1шт.

26

01010-50616

BOLT

SN: 11455-UP

2шт.

27

6210-21-1880

COVER

SN: 11455-UP

1шт.

28

07000-02060

O-RING (K2)

SN: 11455-UP

1шт.

29

01010-51020

BOLT

SN: 11455-UP

3шт.

30

6210-21-3350

POINTER

SN: 11455-UP

1шт.

31

01010-50610

BOLT

SN: 11455-UP

2шт.

32

01640-20610

WASHER

SN: 11455-UP

2шт.

33

6150-21-3230

SEAL¤ FRONT (K2)

SN: 11455-UP

1шт.

34

6210-21-3760

SUPPORT,FRONT

SN: 11455-UP

1шт.

35

6210-21-3750

HANGER,FRONT

SN: 11455-UP

1шт.

36

01010-31030

BOLT

SN: 11455-UP

4шт.

37

09920-00150

LIQUID GASKET,LG-7¤ 150G

SN: 11455-UP

-2шт.

Выбрано товаров: 41