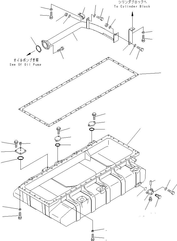
Запчасти Komatsu SA12V140-1M МАСЛЯНЫЙ ПОДДОН (ALUMINIUM) ДВИГАТЕЛЬ

Схема запчастей Komatsu SA12V140-1M - МАСЛЯНЫЙ ПОДДОН (ALUMINIUM) ДВИГАТЕЛЬ
1
2
3
4
5
5
6
7
8
9
9
10
10
11
11
12
13
14
15
16
17
18
19
20
21
22
23
24
25
26
27
28
28
29
30
31
31
32
33
34
FIT
1:1
100%

Артикул

Название

Примечание

Количество

1

6215-25-5110

PAN,OIL

SN: 10517-UP

1шт.

2

6215-25-5850

GASKET (K2)

SN: 10517-UP

1шт.

3

01010-51040

BOLT

SN: 10517-UP

30шт.

4

01010-51060

BOLT

SN: 10517-UP

20шт.

5

6151-61-3781

SPACER

SN: 10517-UP

50шт.

6

6215-25-7140

FLANGE

SN: 10517-UP

1шт.

7

07000-62060

O-RING (K2)

SN: 10517-UP

1шт.

8

01435-01030

BOLT

SN: 10517-UP

4шт.

9

6215-25-5430

COVER

SN: 10517-UP

2шт.

10

07000-63050

O-RING (K2)

SN: 10517-UP

2шт.

11

01435-01030

BOLT

SN: 10517-UP

4шт.

12

07043-50108

PLUG

SN: 10517-UP

1шт.

|13

6693-22-5600

VALVE ASS'Y,DRAIN

SN: 10517-UP

1шт.

13

0

BODY

SN: 10517-UP

1шт.

14

0

VALVE

SN: 10517-UP

1шт.

15

07040-02412

PLUG

SN: 10517-UP

1шт.

16

04020-00514

PIN,DOWEL

SN: 10517-UP

1шт.

17

07000-63028

O-RING (K2)

SN: 10517-UP

1шт.

18

01010-31030

BOLT

SN: 10517-UP

2шт.

19

01643-31032

WASHER

SN: 10517-UP

2шт.

20

6215-55-6210

TUBE,SUCTION

SN: 10517-UP

1шт.

21

07000-32070

O-RING (K2)

SN: 10517-UP

1шт.

22

01010-31030

BOLT

SN: 10517-UP

2шт.

23

6215-55-6250

BRACKET

SN: 10517-UP

1шт.

24

01010-31025

BOLT

SN: 10517-UP

1шт.

25

01643-31032

WASHER

SN: 10517-UP

1шт.

26

01010-31025

BOLT

SN: 10517-UP

1шт.

27

01580-01008

NUT

SN: 10517-UP

1шт.

28

01643-31032

WASHER

SN: 10517-UP

2шт.

29

6164-81-5860

PLATE

SN: 10517-UP

1шт.

30

01010-31025

BOLT

SN: 10517-UP

1шт.

31

01643-31032

WASHER

SN: 10517-UP

2шт.

32

01010-31025

BOLT

SN: 10517-UP

1шт.

33

01580-01008

NUT

SN: 10517-UP

1шт.

34

01643-31032

WASHER

SN: 10517-UP

1шт.

Выбрано товаров: 35