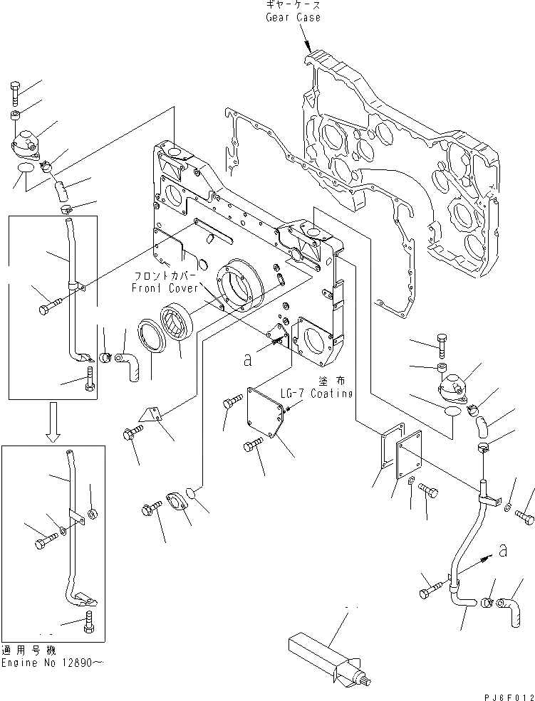
Запчасти Komatsu SA12V140-1S-A САПУН И ПЕРЕДН. УПЛОТНЕНИЕ (БЕЗ КОМПРЕССОР)(№89-) ДВИГАТЕЛЬ

Схема запчастей Komatsu SA12V140-1S-A - САПУН И ПЕРЕДН. УПЛОТНЕНИЕ (БЕЗ КОМПРЕССОР)(№89-) ДВИГАТЕЛЬ
1
1
2
2
3
3
4
4
5
5
6
6
6
6
7
7
8
8
9
9
10
10
10
10
11
12
13
14
15
16
17
18
19
20
21
22
23
24
25
26
27
28
29
30
31
1
1
2
2
3
3
4
4
5
5
6
6
6
6
7
7
8
8
9
9
10
10
10
10
11
12
13
14
15
16
17
18
19
20
21
22
23
24
25
26
27
28
29
30
31
FIT
1:1
100%

Артикул

Название

Примечание

Количество

1

6210-21-8711

BREATHER

SN: 11859-UP

2шт.

2

6631-11-5630

SPACER

SN: 11859-UP

4шт.

3

01010-81040

BOLT

SN: 11859-UP

4шт.

4

07000-72060

O-RING (K2)

SN: 12472-UP

2шт.

|4

0

O-RING (K2)

SN: 11859-12471

2шт.

5

6130-61-6611

HOSE

SN: 11859-UP

2шт.

6

07285-00260

CLIP

SN: 11859-UP

4шт.

7

07287-01912

HOSE

SN: 11859-UP

2шт.

8

07285-00220

CLIP

SN: 11859-UP

2шт.

9

6215-21-8790

TUBE

SN: 12890-UP

1шт.

|9

0

TUBE

SN: 11859-12889

1шт.

10

01010-81220

BOLT

SN: 12890-UP

2шт.

|10

01010-81220

BOLT

SN: 11859-12889

3шт.

11

01010-81255

BOLT

SN: 12890-UP

1шт.

12

01643-31232

WASHER

SN: 12890-UP

1шт.

13

6127-11-5180

SPACER

SN: 12890-UP

1шт.

14

6215-21-8780

TUBE

SN: 11859-UP

1шт.

15

01010-81030

BOLT

SN: 11859-UP

1шт.

16

01643-31032

WASHER

SN: 11859-UP

1шт.

17

6215-71-3711

COVER

SN: 11859-UP

1шт.

18

6215-81-6190

GASKET (K2)

SN: 11859-UP

1шт.

19

01010-81025

BOLT

SN: 11859-UP

3шт.

20

01643-31032

WASHER

SN: 11859-UP

3шт.

21

6215-21-3350

POINTER

SN: 11859-UP

1шт.

22

01435-00610

BOLT

SN: 11859-UP

2шт.

23

6216-21-3170

SEAL¤ FRONT (K2)

SN: 12744-UP

1шт.

|23

0

SEAL¤ FRONT (K2)

SN: 11859-12743

1шт.

24

6144-81-5151

COVER

SN: 11859-UP

1шт.

25

07000-03050

O-RING (K2)

SN: 11859-UP

1шт.

26

01435-00612

BOLT

SN: 11859-UP

2шт.

27

6215-21-1850

COVER

SN: 11859-UP

1шт.

28

01010-81280

BOLT

SN: 11859-UP

4шт.

29

01010-81220

BOLT

SN: 11859-UP

1шт.

30

6162-23-3520

SEAL,DUST

SN: 12744-UP

1шт.

31

09920-00150

LIQUID GASKET,LG-7¤ 150G

SN: 11859-UP

-2шт.

1

6210-21-8711

BREATHER

SN: 11859-UP

2шт.

2

6631-11-5630

SPACER

SN: 11859-UP

4шт.

3

01010-81040

BOLT

SN: 11859-UP

4шт.

4

07000-72060

O-RING (K2)

SN: 12472-UP

2шт.

|4

0

O-RING (K2)

SN: 11859-12471

2шт.

5

6130-61-6611

HOSE

SN: 11859-UP

2шт.

6

07285-00260

CLIP

SN: 11859-UP

4шт.

7

07287-01912

HOSE

SN: 11859-UP

2шт.

8

07285-00220

CLIP

SN: 11859-UP

2шт.

9

6215-21-8790

TUBE

SN: 12890-UP

1шт.

|9

0

TUBE

SN: 11859-12889

1шт.

10

01010-81220

BOLT

SN: 12890-UP

2шт.

|10

01010-81220

BOLT

SN: 11859-12889

3шт.

11

01010-81255

BOLT

SN: 12890-UP

1шт.

12

01643-31232

WASHER

SN: 12890-UP

1шт.

13

6127-11-5180

SPACER

SN: 12890-UP

1шт.

14

6215-21-8780

TUBE

SN: 11859-UP

1шт.

15

01010-81030

BOLT

SN: 11859-UP

1шт.

16

01643-31032

WASHER

SN: 11859-UP

1шт.

17

6215-71-3711

COVER

SN: 11859-UP

1шт.

18

6215-81-6190

GASKET (K2)

SN: 11859-UP

1шт.

19

01010-81025

BOLT

SN: 11859-UP

3шт.

20

01643-31032

WASHER

SN: 11859-UP

3шт.

21

6215-21-3350

POINTER

SN: 11859-UP

1шт.

22

01435-00610

BOLT

SN: 11859-UP

2шт.

23

6216-21-3170

SEAL¤ FRONT (K2)

SN: 12744-UP

1шт.

|23

0

SEAL¤ FRONT (K2)

SN: 11859-12743

1шт.

24

6144-81-5151

COVER

SN: 11859-UP

1шт.

25

07000-03050

O-RING (K2)

SN: 11859-UP

1шт.

26

01435-00612

BOLT

SN: 11859-UP

2шт.

27

6215-21-1850

COVER

SN: 11859-UP

1шт.

28

01010-81280

BOLT

SN: 11859-UP

4шт.

29

01010-81220

BOLT

SN: 11859-UP

1шт.

30

6162-23-3520

SEAL,DUST

SN: 12744-UP

1шт.

31

09920-00150

LIQUID GASKET,LG-7¤ 150G

SN: 11859-UP

-2шт.

Выбрано товаров: 70