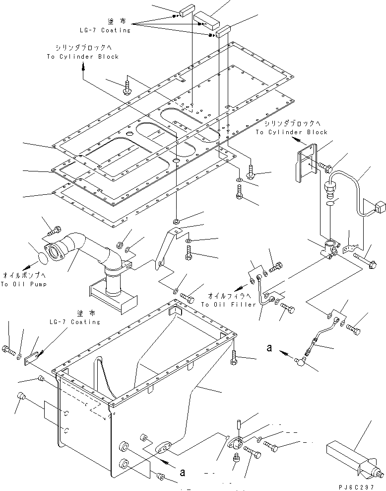
Запчасти Komatsu SA12V140-1U-A МАСЛЯНЫЙ ПОДДОН И ВСАСЫВАЮЩИЙ ПАТРУБОК (С ДАТЧИК УР-НЯ МАСЛА)(№7-79) ДВИГАТЕЛЬ

Схема запчастей Komatsu SA12V140-1U-A - МАСЛЯНЫЙ ПОДДОН И ВСАСЫВАЮЩИЙ ПАТРУБОК (С ДАТЧИК УР-НЯ МАСЛА)(№7-79) ДВИГАТЕЛЬ
1
2
3
4
4
5
6
7
8
9
9
10
11
12
12
13
14
15
16
17
18
19
20
21
22
23
24
25
26
27
27
27
28
28
28
29
30
31
32
33
34
35
36
37
38
39
40
41
42
42
42
43
44
FIT
1:1
100%

Артикул

Название

Примечание

Количество

1

6215-21-5210

PAN,OIL

SN: 11755-@

1шт.

2

6215-21-5121

PLATE

SN: 11755-@

1шт.

3

6215-21-5130

PLATE

SN: 11755-@

1шт.

4

6215-21-5140

PLATE

SN: 11755-@

2шт.

5

6215-21-5811

GASKET (K2)

SN: 11755-@

1шт.

6

6215-21-5820

GASKET (K2)

SN: 11755-@

1шт.

7

01010-81040

BOLT

SN: 11755-@

40шт.

8

01435-01035

BOLT

SN: 11755-@

5шт.

9

01010-81025

BOLT

SN: 11755-@

23шт.

10

01643-31032

WASHER

SN: 11755-@

23шт.

11

07043-70211

PLUG

SN: 11755-@

1шт.

12

02720-11616

PLUG

SN: 11755-@

4шт.

13

6215-21-5160

COVER

SN: 11755-@

1шт.

14

01010-81020

BOLT

SN: 11755-@

2шт.

15

01643-31032

WASHER

SN: 11755-@

2шт.

|16

6693-22-5600

VALVE ASS'Y

SN: 11755-@

1шт.

16

0

BODY

SN: 11755-@

1шт.

17

0

VALVE

SN: 11755-@

1шт.

18

07040-02412

PLUG

SN: 11755-@

1шт.

19

04020-00514

PIN,DOWEL

SN: 11755-@

1шт.

20

07000-63028

O-RING (K2)

SN: 11755-@

1шт.

21

01010-81030

BOLT

SN: 11755-@

2шт.

22

01643-31032

WASHER

SN: 11755-@

2шт.

23

7861-92-4550

SENSOR

SN: 11755-@

1шт.

24

6162-83-8612

CASE

SN: 11755-@

1шт.

25

07002-23634

O-RING (K2)

SN: 11755-@

1шт.

26

6215-81-5860

BRACKET

SN: 11755-11793

1шт.

27

07206-31014

BOLT,JOINT

SN: 11755-@

3шт.

28

07005-01412

GASKET

SN: 11755-@

6шт.

29

6215-81-5890

TUBE

SN: 11755-11793

1шт.

30

6215-81-5940

TUBE

SN: 11755-@

1шт.

31

01435-01080

BOLT

SN: 11755-@

2шт.

32

01435-01020

BOLT

SN: 11755-@

2шт.

33

08053-01510

CLIP

SN: 11755-@

1шт.

34

07217-60813

ELBOW

SN: 11755-@

1шт.

35

6215-51-6380

TUBE

SN: 11755-11793

1шт.

36

07000-E2080

O-RING

SN: 11755-@

1шт.

37

01010-81235

BOLT

SN: 11755-@

2шт.

38

6215-51-6250

BRACKET

SN: 11755-11793

1шт.

39

01010-81035

BOLT

SN: 11755-11793

1шт.

40

01010-81025

BOLT

SN: 11755-@

1шт.

41

01580-01008

NUT

SN: 11755-@

1шт.

42

01643-31032

WASHER

SN: 11755-@

3шт.

43

6141-25-3770

WASHER

SN: 11755-@

1шт.

44

09920-00150

LIQUID GASKET,LG-7 150G

SN: 11755-@

-2шт.

Выбрано товаров: 45