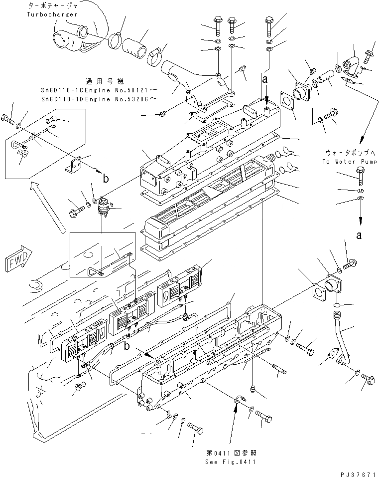
Запчасти Komatsu SA6D110-1D ТРУБОПРОВОД ВПУСКА ВОЗДУХА И ПОСЛЕОХЛАДИТЕЛЬ ГОЛОВКА ЦИЛИНДРОВ

Схема запчастей Komatsu SA6D110-1D - ТРУБОПРОВОД ВПУСКА ВОЗДУХА И ПОСЛЕОХЛАДИТЕЛЬ ГОЛОВКА ЦИЛИНДРОВ
1
2
3
4
5
5
6
7
7
8
8
9
9
10
11
12
12
13
14
15
16
16
17
18
18
18
19
19
20
21
22
23
24
25
26
27
28
29
30
30
31
31
32
33
33
34
35
36
36
37
37
38
38
39
40
41
41
42
43
44
45
46
47
48
49
50
51
52
53
54
55
56
57
57
58
58
59
59
60
61
61
61
FIT
1:1
100%

Артикул

Название

Примечание

Количество

|1

6138-11-4104

AFTER COOLER ASS'Y

SN: 15104-UP

1шт.

|1

0

AFTER COOLER ASS'Y

SN: 10350-15103

1шт.

1

6138-11-4113

MANIFOLD

SN: 10350-UP

1шт.

2

07042-00108

PLUG

SN: 15104-UP

2шт.

|2

07042-00108

PLUG

SN: 10350-15103

4шт.

3

01160-50825

STUD

SN: 10350-UP

5шт.

4

6138-11-4631

CORE ASS'Y

SN: 15104-UP

1шт.

|4

6138-11-4630

CORE ASS'Y

SN: 10350-15103

1шт.

5

6162-63-6240

O-RING (K1)

SN: 15104-UP

4шт.

|5

6710-61-6340

O-RING

SN: 10350-15103

4шт.

6

6138-11-4611

COVER

SN: 15104-UP

1шт.

|6

6138-11-4610

COVER

SN: 10350-15103

1шт.

7

6138-11-4620

GASKET (K1)

SN: 10350-UP

2шт.

8

01436-20800

BOLT

SN: 15104-UP

20шт.

|8

6140-11-8160

BOLT

SN: 10350-15103

20шт.

9

01602-00825

WASHER,SPRING

SN: 10350-15103

20шт.

10

01640-00816

WASHER

SN: 10350-15103

19шт.

11

01640-00816

WASHER

SN: 10350-UP

1шт.

12

6138-11-4810

GASKET (K1)

SN: 10350-UP

2шт.

13

600-815-2620

HEATER,RIBBON

SN: 10350-UP

1шт.

14

600-815-2630

HEATER,RIBBON

SN: 10350-UP

1шт.

15

600-815-2640

HEATER,RIBBON

SN: 10350-UP

1шт.

16

6138-11-4870

BOLT

SN: 10350-UP

6шт.

17

6138-11-4880

BOLT

SN: 10350-UP

6шт.

18

01602-00825

WASHER,SPRING

SN: 10350-UP

12шт.

19

01640-20816

WASHER

SN: 10350-UP

11шт.

20

08036-10810

CLIP

SN: 10350-UP

3шт.

21

6138-11-4670

BRACKET

SN: 10350-UP

2шт.

22

01010-31025

BOLT

SN: 10350-UP

10шт.

23

01602-01030

WASHER,SPRING

SN: 10350-UP

10шт.

24

6138-11-4310

CONNECTOR,AIR

SN: 10350-UP

1шт.

25

07042-00108

PLUG

SN: 10350-UP

2шт.

26

07042-00415

PLUG

SN: 10350-UP

1шт.

27

6138-11-4820

GASKET (K1)

SN: 10350-UP

1шт.

28

01435-00825

BOLT

SN: 50018-UP

2шт.

|28

01010-30835

BOLT

SN: 10350-50017

2шт.

29

01435-00870

BOLT

SN: 50018-UP

2шт.

|29

01010-30875

BOLT

SN: 10350-50017

2шт.

30

01602-00825

WASHER,SPRING

SN: 10350-50017

4шт.

31

01640-20816

WASHER

SN: 10350-50017

4шт.

32

6137-15-4370

HOSE,AIR

SN: 50121-UP

1шт.

|32

0

HOSE,AIR

SN: 10350-50120

1шт.

33

07281-00709

CLAMP

SN: 10350-UP

2шт.

34

6138-61-6440

JOINT

SN: 10350-UP

1шт.

35

6131-81-8820

NIPPLE

SN: 10350-UP

1шт.

36

6128-61-6830

GASKET (K1)

SN: 10350-UP

2шт.

37

01435-00820

BOLT

SN: 50018-UP

8шт.

|37

01010-30825

BOLT

SN: 10350-50017

8шт.

38

01602-00825

WASHER,SPRING

SN: 10350-50017

8шт.

39

6138-61-6430

PIPE

SN: 10350-UP

1шт.

40

6162-83-6290

HOSE,WATER

SN: 10350-UP

1шт.

41

07281-00419

CLAMP

SN: 10350-UP

2шт.

42

6138-61-6461

GASKET (K1)

SN: 10350-UP

1шт.

43

01435-00820

BOLT

SN: 50018-UP

2шт.

|43

01010-30825

BOLT

SN: 10350-50017

2шт.

44

01602-00825

WASHER,SPRING

SN: 10350-50017

2шт.

45

6138-61-6420

JOINT

SN: 10350-UP

1шт.

46

6138-61-6411

PIPE

SN: 10456-UP

1шт.

|46

0

PIPE

SN: 10350-10455

1шт.

|$$60

(6138-61-6411{01010-30825(2))}

-1шт.

47

07000-02021

O-RING (K1)

SN: 10350-UP

1шт.

48

6138-61-6451

GASKET (K1)

SN: 10350-UP

1шт.

49

01435-00825

BOLT

SN: 50018-UP

2шт.

|49

01010-30825

BOLT

SN: 10456-50017

2шт.

|49

01010-30820

BOLT

SN: 10350-10455

2шт.

50

01602-00825

WASHER,SPRING

SN: 10350-50017

2шт.

51

600-815-2170

SWITCH,HEATER

SN: 10708-UP

1шт.

|51

0

SWITCH,HEATER

SN: 10350-10707

1шт.

52

01435-00614

BOLT

SN: 50018-UP

2шт.

|52

01010-30620

BOLT

SN: 10350-50017

2шт.

53

01602-00619

WASHER,SPRING

SN: 10350-50017

2шт.

54

01640-20610

WASHER

SN: 10350-50017

2шт.

55

6138-81-4240

WIRE¤ 600MM

SN: 10350-UP

1шт.

56

6138-81-4230

WIRE¤ 250MM

SN: 10350-UP

2шт.

57

6138-81-4250

WIRE¤ 200MM

SN: 10350-UP

1шт.

58

08034-00310

BAND

SN: 10350-UP

2шт.

59

6206-81-4720

WIRE¤ 480MM

SN: 10350-UP

1шт.

|59

0

WIRE¤ 550MM

SN: (10350-51020)

1шт.

60

08036-11214

CLIP

SN: 50121-UP

1шт.

61

08038-00519

CAP

SN: 50121-UP

8шт.

Выбрано товаров: 80