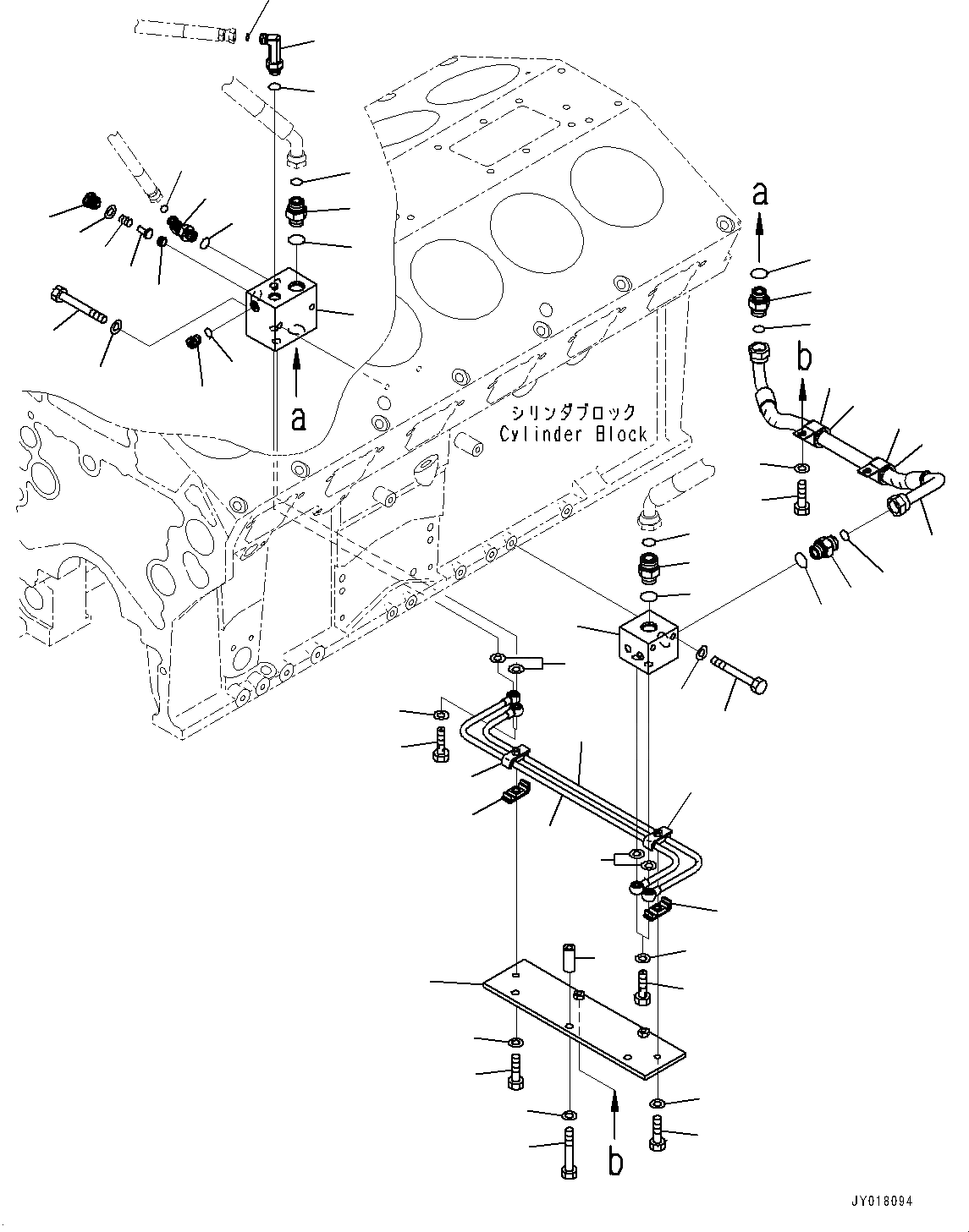
Запчасти Komatsu SAA12V140E-3E ТОПЛИВОПРОВОД., ТОПЛИВН. ФИЛЬТР. (/) (№-) ТОПЛИВОПРОВОД.

Схема запчастей Komatsu SAA12V140E-3E - ТОПЛИВОПРОВОД., ТОПЛИВН. ФИЛЬТР. (/) (№-) ТОПЛИВОПРОВОД.
18
16
15
10
14
11
12
13
5
9
7
19
8
22
21
17
21
20
22
6
5
4
3
1
2
8
5
7
8
7
5
37
36
37
36
23
28
25
29
27
26
26
24
27
35
27
30
29
27
30
31
32
34
33
32
31
39
38
18
16
15
10
14
11
12
13
5
9
7
19
8
22
21
17
21
20
22
6
5
4
3
1
2
8
5
7
8
7
5
37
36
37
36
23
28
25
29
27
26
26
24
27
35
27
30
29
27
30
31
32
34
33
32
31
39
38
FIT
1:1
100%

Артикул

Название

Примечание

Количество

1

6219-71-7240

Joint

SN: 502033-UP

1шт.

2

01010-81090

Bolt

SN: 502033-UP

2шт.

3

01643-31032

Washer

SN: 502033-UP

2шт.

4

02781-00628

Union

SN: 502033-UP

1шт.

5

07002-12434

O-ring

SN: 502033-UP

4шт.

6

02896-11018

O-ring

SN: 502033-UP

1шт.

7

02781-00522

Union

SN: 502033-UP

3шт.

8

02896-11015

O-ring

SN: 502033-UP

3шт.

8

6219-71-7200

Joint Assembly

SN: 502033-UP

1шт.

9

6219-71-7250

Block

SN: 502033-UP

1шт.

10

6217-71-6820

Valve

SN: 502033-UP

1шт.

11

6217-71-6830

Spring

SN: 502033-UP

1шт.

12

6217-71-6840

Washer

SN: 502033-UP

1шт.

13

6217-71-6850

Plug

SN: 502033-UP

1шт.

14

6217-71-6870

Pin

SN: 502033-UP

1шт.

15

6215-81-9510

Plug

SN: 502033-UP

1шт.

16

6215-81-9710

O-ring

SN: 502033-UP

1шт.

17

01010-81090

Bolt

SN: 502033-UP

2шт.

18

01643-31032

Washer

SN: 502033-UP

2шт.

19

02782-10313

Elbow

SN: 502033-UP

1шт.

20

02782-10314

Elbow

SN: 502033-UP

1шт.

21

07002-11823

O-ring

SN: 502033-UP

2шт.

22

02896-11009

O-ring

SN: 502033-UP

2шт.

23

6219-71-7220

Hose

SN: 502033-UP

1шт.

24

6219-71-4860

Tube

SN: 502033-UP

1шт.

25

6219-71-4890

Tube

SN: 502033-UP

1шт.

26

07206-31014

Bolt, Joint

SN: 502033-UP

4шт.

27

07005-01412

Seal, Washer

SN: 502033-UP

8шт.

28

6219-71-7270

Plate

SN: 502033-UP

1шт.

29

6166-75-6821

Clamp, half

SN: 502033-UP

2шт.

30

6261-51-9481

Clamp, half

SN: 502033-UP

2шт.

|$31

01435-00840

Bolt

SN: 502033-504285

2шт.

31

01010-80845

Bolt

SN: 504286-UP

2шт.

32

01643-30823

Washer

SN: 504286-UP

2шт.

|$34

01435-01075

Bolt

SN: 502033-504285

3шт.

33

01010-81080

Bolt

SN: 504286-UP

3шт.

34

01643-31032

Washer

SN: 504286-UP

3шт.

35

6134-11-5120

Spacer

SN: 502033-UP

3шт.

36

04434-53211

Clip

SN: 502033-UP

2шт.

37

07095-20523

Cushion

SN: 502033-UP

2шт.

|$40

01435-01025

Bolt

SN: 502033-504285

2шт.

38

01010-81030

Bolt

SN: 504286-UP

2шт.

39

01643-31032

Washer

SN: 504286-UP

2шт.

1

6219-71-7240

Joint

SN: 502033-UP

1шт.

2

01010-81090

Bolt

SN: 502033-UP

2шт.

3

01643-31032

Washer

SN: 502033-UP

2шт.

4

02781-00628

Union

SN: 502033-UP

1шт.

5

07002-12434

O-ring

SN: 502033-UP

4шт.

6

02896-11018

O-ring

SN: 502033-UP

1шт.

7

02781-00522

Union

SN: 502033-UP

3шт.

8

02896-11015

O-ring

SN: 502033-UP

3шт.

8

6219-71-7200

Joint Assembly

SN: 502033-UP

1шт.

9

6219-71-7250

Block

SN: 502033-UP

1шт.

10

6217-71-6820

Valve

SN: 502033-UP

1шт.

11

6217-71-6830

Spring

SN: 502033-UP

1шт.

12

6217-71-6840

Washer

SN: 502033-UP

1шт.

13

6217-71-6850

Plug

SN: 502033-UP

1шт.

14

6217-71-6870

Pin

SN: 502033-UP

1шт.

15

6215-81-9510

Plug

SN: 502033-UP

1шт.

16

6215-81-9710

O-ring

SN: 502033-UP

1шт.

17

01010-81090

Bolt

SN: 502033-UP

2шт.

18

01643-31032

Washer

SN: 502033-UP

2шт.

19

02782-10313

Elbow

SN: 502033-UP

1шт.

20

02782-10314

Elbow

SN: 502033-UP

1шт.

21

07002-11823

O-ring

SN: 502033-UP

2шт.

22

02896-11009

O-ring

SN: 502033-UP

2шт.

23

6219-71-7220

Hose

SN: 502033-UP

1шт.

24

6219-71-4860

Tube

SN: 502033-UP

1шт.

25

6219-71-4890

Tube

SN: 502033-UP

1шт.

26

07206-31014

Bolt, Joint

SN: 502033-UP

4шт.

27

07005-01412

Seal, Washer

SN: 502033-UP

8шт.

28

6219-71-7270

Plate

SN: 502033-UP

1шт.

29

6166-75-6821

Clamp, half

SN: 502033-UP

2шт.

30

6261-51-9481

Clamp, half

SN: 502033-UP

2шт.

|$31

01435-00840

Bolt

SN: 502033-504285

2шт.

31

01010-80845

Bolt

SN: 504286-UP

2шт.

32

01643-30823

Washer

SN: 504286-UP

2шт.

|$34

01435-01075

Bolt

SN: 502033-504285

3шт.

33

01010-81080

Bolt

SN: 504286-UP

3шт.

34

01643-31032

Washer

SN: 504286-UP

3шт.

35

6134-11-5120

Spacer

SN: 502033-UP

3шт.

36

04434-53211

Clip

SN: 502033-UP

2шт.

37

07095-20523

Cushion

SN: 502033-UP

2шт.

|$40

01435-01025

Bolt

SN: 502033-504285

2шт.

38

01010-81030

Bolt

SN: 504286-UP

2шт.

39

01643-31032

Washer

SN: 504286-UP

2шт.

Выбрано товаров: 86