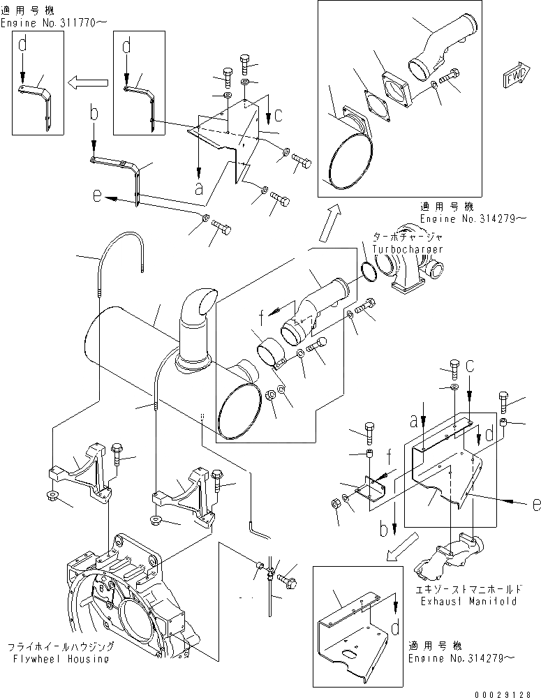
Запчасти Komatsu SAA6D125E-3K-8K ГЛУШИТЕЛЬ(№78-) ДВИГАТЕЛЬ

Схема запчастей Komatsu SAA6D125E-3K-8K - ГЛУШИТЕЛЬ(№78-) ДВИГАТЕЛЬ
1
1
2
2
3
3
4
4
5
5
6
6
7
8
9
10
11
11
12
13
14
15
16
16
17
18
19
20
21
22
22
23
24
25
26
26
27
27
27
27
27
28
28
28
28
28
28
29
30
31
32
33
34
FIT
1:1
100%

Артикул

Название

Примечание

Количество

1

6156-11-5281

MUFFLER

SN: 314279-UP

1шт.

|1

0

MUFFLER

SN: 311768-314278

1шт.

2

6222-11-5940

U-BOLT

SN: 311768-UP

2шт.

3

01594-01008

NUT

SN: 311768-UP

4шт.

4

6156-11-3510

BRACKET

SN: 311768-UP

2шт.

5

01435-01045

BOLT

SN: 311768-UP

4шт.

6

6156-11-5521

CONNECTOR

SN: 314279-UP

1шт.

|6

0

CONNECTOR

SN: 311768-314278

1шт.

7

6156-11-5531

BRACKET

SN: 311768-UP

1шт.

8

01010-E1040

BOLT

SN: 311768-UP

2шт.

9

6631-11-5630

SPACER

SN: 311768-UP

2шт.

10

01010-E1040

BOLT

SN: 311768-UP

2шт.

11

01643-31032

WASHER

SN: 311768-UP

4шт.

12

01580-01008

NUT

SN: 311768-UP

2шт.

13

6151-11-5280

RING

SN: 311768-UP

1шт.

14

6152-12-5851

CLAMP

SN: 311768-314278

1шт.

15

01010-E1245

BOLT

SN: 311768-314278

2шт.

16

01643-51232

WASHER

SN: 311768-314278

4шт.

17

01580-01210

NUT

SN: 311768-314278

2шт.

18

6156-11-5550

PLATE

SN: 314279-UP

1шт.

19

01020-11250

BOLT

SN: 314279-UP

4шт.

20

01643-31232

WASHER

SN: 314279-UP

4шт.

21

6211-11-5490

GASKET

SN: 314279-UP

1шт.

22

208-01-71321

BRACKET

SN: 314279-UP

1шт.

|22

0

BRACKET

SN: 311768-314278

1шт.

23

01010-E1045

BOLT

SN: 311768-UP

2шт.

24

6631-11-5630

SPACER

SN: 311768-UP

2шт.

25

208-01-71370

BRACKET

SN: 311768-UP

1шт.

26

208-01-71381

BRACKET

SN: 311770-UP

1шт.

|26

0

BRACKET

SN: 311768-311769

1шт.

27

01010-E1030

BOLT

SN: 311768-UP

9шт.

28

6110-23-6490

SPACER

SN: 311768-UP

11шт.

29

208-01-71330

COVER

SN: 311768-UP

1шт.

30

01010-E1025

BOLT

SN: 311768-UP

2шт.

31

6156-11-5510

TUBE,DRAIN

SN: 311768-UP

1шт.

32

6151-53-8280

CLIP

SN: 311768-UP

1шт.

33

01435-01030

BOLT

SN: 311768-UP

1шт.

34

6631-11-6390

SPACER

SN: 311768-UP

1шт.

Выбрано товаров: 38