Запчасти Komatsu SAA6D140E-3A-8 ГОРНЫЙ ТОРМОЗ (ВНУТР. ЧАСТИ)(№-98) ДВИГАТЕЛЬ

Схема запчастей Komatsu SAA6D140E-3A-8 - ГОРНЫЙ ТОРМОЗ (ВНУТР. ЧАСТИ)(№-98) ДВИГАТЕЛЬ
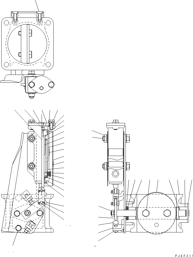
1
2
3
4
5
6
7
8
9
10
11
12
13
14
15
16
17
18
19
20
21
22
23
24
25
26
27
28
29
30
31
32
33
34
35
36
37
38
39
40
41
42
FIT
1:1
100%

Артикул

Название

Примечание

Количество

|$1

6212-11-8102

EXHAUST BRAKE ASS'Y

SN: 110003-@

1шт.

|$3

JKX8087-061

BRAKE VALVE ASS'Y

SN: 110003-110968

1шт.

1

0

BODY

SN: 110003-110968

1шт.

2

0

BUSHING

SN: 110003-110968

1шт.

3

0

SHAFT

SN: 110003-110968

1шт.

4

JKX8087-367

VALVE

SN: 110003-110968

1шт.

5

0

BUSHING

SN: 110003-110968

1шт.

6

JK1100-0725

BOLT

SN: 110003-110968

2шт.

7

0

SEAL,RING

SN: 110003-110968

3шт.

8

0

SEAL,RING

SN: 110003-110968

3шт.

9

JK281-20535

COVER

SN: 110003-110968

1шт.

10

JKX8087-369

PLATE

SN: 110003-110968

1шт.

11

JK1100-0760

BOLT

SN: 110003-110968

2шт.

12

JK0151-0805

NUT

SN: 110003-110968

2шт.

13

JK1120-0348

SCREW

SN: 110003-110968

2шт.

14

JK1105-0047

BOLT,FLANGE

SN: 110003-110968

3шт.

15

JK1113-0285

NUT,FLANGE

SN: 110003-110968

1шт.

16

JK281-22173

LEVER

SN: 110003-110968

1шт.

|$20

JK284-01063

CONTROL ASS'Y

SN: 110003-110968

1шт.

|$21

JK284-10707

CYLINDER ASS'Y

SN: 110003-110968

1шт.

17

0

CYLINDER

SN: 110003-110968

1шт.

18

JK1261-0232

BUSH

SN: 110003-110968

1шт.

19

JK1306-0081

SEAL,DUST

SN: 110003-110968

1шт.

20

JK1411-0591

SPRING

SN: 110003-110968

1шт.

21

JK284-20621

SHAFT

SN: 110003-110968

1шт.

22

JK284-22105

PROTECTOR,CYLINDER

SN: 110003-110968

1шт.

23

0

PISTON

SN: 110003-110968

1шт.

24

JK284-22007

RING,WEAR

SN: 110003-110968

1шт.

25

JK1310-0264

PACKING,CUP

SN: 110003-110968

1шт.

26

JK1132-0255

WASHER

SN: 110003-110968

1шт.

27

JK1113-0285

NUT,FLANGE

SN: 110003-110968

1шт.

28

JK1173-0016

O-RING

SN: 110003-110968

1шт.

29

JK284-20507

COVER

SN: 110003-110968

1шт.

30

JK0801-0820

BOLT,WITH WASHER

SN: 110003-110968

2шт.

31

JK652-21900

FILTER

SN: 110003-110968

1шт.

32

JK0410-1210

RING,RETAINING

SN: 110003-110968

1шт.

33

JK284-22203

GUIDE

SN: 110003-110968

1шт.

34

0

PROTECTOR

SN: 110003-110968

1шт.

35

0

LABEL

SN: 110003-110968

1шт.

36

JK1105-0166

BOLT

SN: 110003-110968

2шт.

37

JK1113-0281

NUT

SN: 110003-110968

2шт.

38

JK1291-0200

CLEVIS

SN: 110003-110968

1шт.

39

JK1155-0074

PIN

SN: 110003-110968

2шт.

40

JK286-20111

PIN

SN: 110003-110968

2шт.

41

JK286-20649

INSULATOR

SN: 110003-110968

1шт.

42

0

LABEL

SN: 110003-110968

1шт.

Выбрано товаров: 0