Запчасти Komatsu WB93R-5E0 АККУМУЛЯТОР ( AH) КОМПОНЕНТЫ ДВИГАТЕЛЯ И ЭЛЕКТРИКА

Схема запчастей Komatsu WB93R-5E0 - АККУМУЛЯТОР ( AH) КОМПОНЕНТЫ ДВИГАТЕЛЯ И ЭЛЕКТРИКА
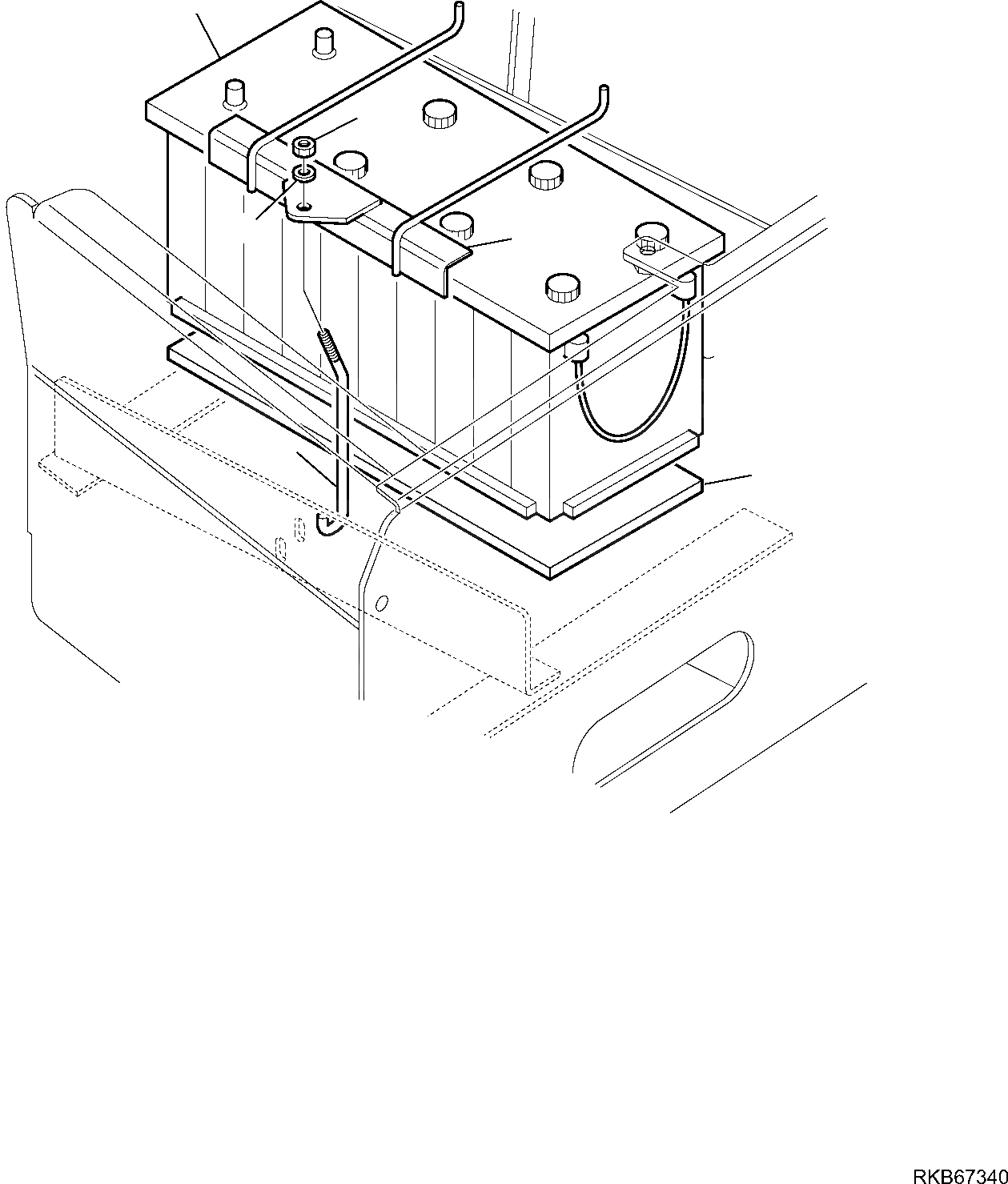
1
4
5
2
3
6
FIT
1:1
100%

Артикул

Название

Примечание

Количество

1

21D-06-11110

BATTERY, 160 AH

2

42N-54-12890

BRACKET

3

42N-54-12930

TIE-ROD

4

37A-09-3F008

NUT

5

01643-10823

WASHER

6

42N-06-13321

RUBBER

Выбрано товаров: 6