Запчасти Komatsu HB205-1 ЭЛЕКТРИЧ. ПРОВОДКА, ЭКСТРЕНН. ПЕРЕКЛЮЧАТЕЛЬ (№-) ЭЛЕКТРИЧ. ПРОВОДКА, С ЭКСТРЕНН. СТОП ПЕРЕКЛЮЧАТЕЛЬ

Схема запчастей Komatsu HB205-1 - ЭЛЕКТРИЧ. ПРОВОДКА, ЭКСТРЕНН. ПЕРЕКЛЮЧАТЕЛЬ (№-) ЭЛЕКТРИЧ. ПРОВОДКА, С ЭКСТРЕНН. СТОП ПЕРЕКЛЮЧАТЕЛЬ
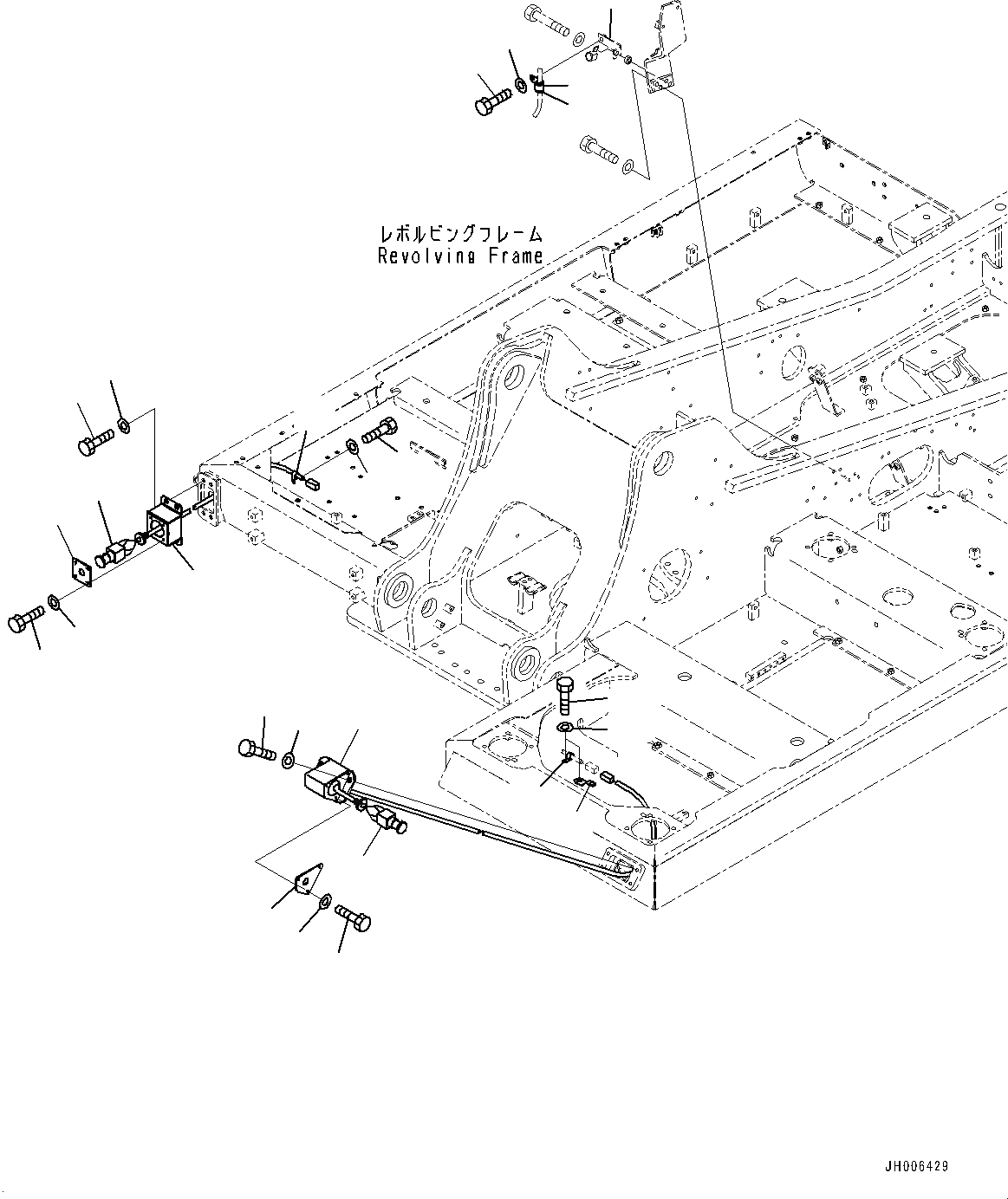
19
18
15
12
11
10
9
8
7
6
5
4
2
1
13
14
19
17
18
3
16
21
20
22
23
24
FIT
1:1
100%

Артикул

Название

Примечание

Количество

1

207-06-75440

Cover

2

207-06-75460

Cover

3

207-06-75430

Wiring Harness

4

01010-80616

Bolt

5

01643-30623

Washer

6

01010-81225

Bolt

7

01643-31232

Washer

8

205-06-32730

Cover

9

42C-Z89-2430

Plate

10

207-06-75430

Wiring Harness

11

01010-80616

Bolt

12

01643-30623

Washer

13

01010-81225

Bolt

14

01643-31232

Washer

15

04434-51012

Clip

16

08057-12012

Clip

17

08193-20012

Clip

18

01010-81225

Bolt

19

01643-31232

Washer

20

07095-20627

Cushion

21

04434-53412

Clip

22

01010-81225

Bolt

23

01643-31232

Washer

24

203-06-61730

Bracket

Выбрано товаров: 24