Запчасти Komatsu MX502 ОСНОВН. КОНСТРУКЦИЯ (ПОВОРОТН. УПРАВЛ-Е) (НАВЕС) КАБИНА ОПЕРАТОРА И СИСТЕМА УПРАВЛЕНИЯ

Схема запчастей Komatsu MX502 - ОСНОВН. КОНСТРУКЦИЯ (ПОВОРОТН. УПРАВЛ-Е) (НАВЕС) КАБИНА ОПЕРАТОРА И СИСТЕМА УПРАВЛЕНИЯ
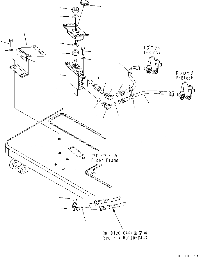
1
2
3
4
5
6
7
8
8
9
9
10
11
12
12
12
13
14
14
14
14
15
15
15
16
17
18
FIT
1:1
100%

Артикул

Название

Примечание

Количество

1

458-318

PILOT VALVE,(SEE FIG.Y1670-21A1)

2

458-428

PEDAL

3

107-966

BOLT

4

455-132

WASHER

5

451-177

CAP

6

457-705

COVER

7

452-802

HINGE (WELDED)

8

454-936

NUT

9

455-122

WASHER

10

107-966

BOLT

11

455-132

WASHER

12

452-308

ELBOW

13

453-416

NIPPLE

14

453-523

O-RING

15

453-688

O-RING

16

457-948

HOSE,BLUE¤ WHITE

|16

450-123

BAND¤ BLUE

|16

450-128

BAND¤ WHITE

17

457-941

HOSE,GREEN¤ RED

|17

450-125

BAND¤ GREEN

|17

450-127

BAND¤ RED

18

450-105

BAND

Выбрано товаров: 22