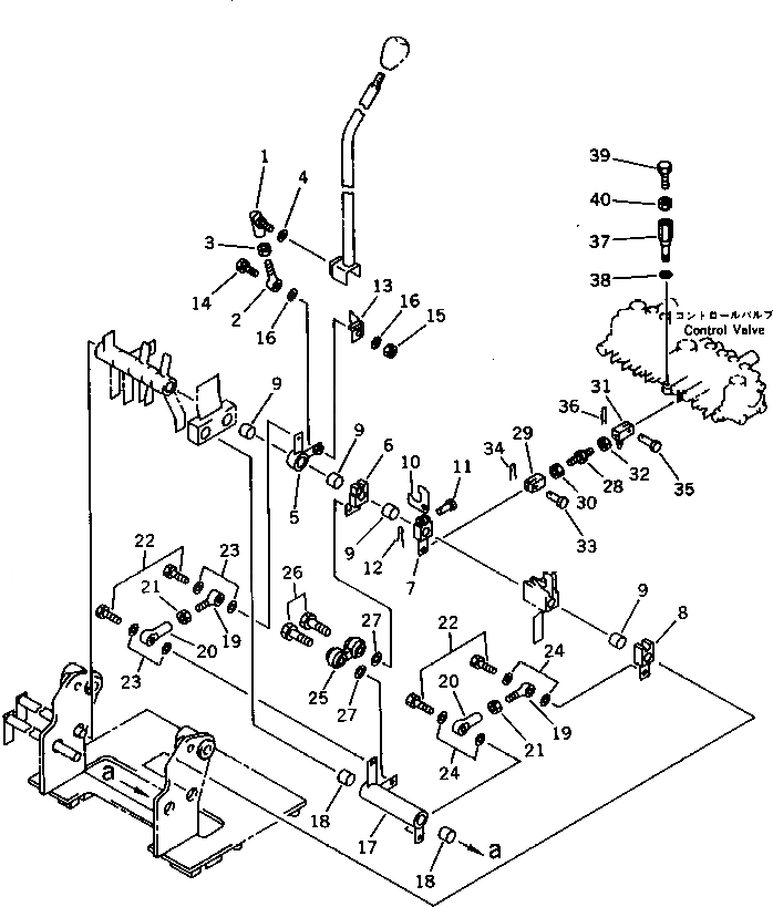
Запчасти Komatsu PC07-1 РУКОЯТЬ РЫЧАГ УПРАВЛ-Я(№-) СИСТЕМА УПРАВЛЕНИЯ И ОСНОВНАЯ РАМА

Схема запчастей Komatsu PC07-1 - РУКОЯТЬ РЫЧАГ УПРАВЛ-Я(№-) СИСТЕМА УПРАВЛЕНИЯ И ОСНОВНАЯ РАМА
FIT
1:1
100%

Артикул

Название

Примечание

Количество

1

20T-43-11320

JOINT,BALL

2

20T-43-11330

END,ROD

3

01580-11008

NUT

4

01643-31032

WASHER

5

20W-43-12222

LEVER

6

20W-43-12233

LEVER

7

20W-43-00150

LEVER

8

20W-43-12293

LEVER

9

195-43-43190

BEARING

10

20S-43-31541

PLATE

11

04205-10625

PIN

12

04050-11612

PIN,COTTER

13

20W-43-12170

STOPPER

14

01016-51050

BOLT

15

01580-11008

NUT

16

01643-31032

WASHER

17

20W-43-12332

LEVER

18

195-43-43190

BEARING

19

04252-20853

END,ROD

20

04250-80847

END,ROD

21

01580-10806

NUT

22

01010-50825

BOLT

23

01643-30823

WASHER

24

04254-10823

SPACER

25

20W-43-12710

END,ROD

26

01010-50825

BOLT

27

01643-30823

WASHER

28

20W-43-11210

ROD

29

20M-43-48271

YOKE

30

01580-10806

NUT

31

20W-43-11220

YOKE,L.H. THREAD

32

01508-40805

NUT,L.H. THREAD

33

04205-30822

PIN

34

04050-12015

PIN,COTTER

35

04205-10520

PIN

36

04052-10530

PIN,SNAP

37

20W-43-12160

BOLT

38

01643-30823

WASHER

39

01016-50830

BOLT

40

01580-10806

NUT

Выбрано товаров: 40