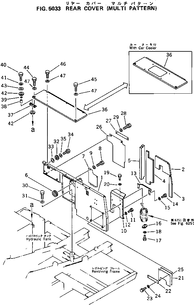
Запчасти Komatsu PC100-5Z ЗАДН. КРЫШКА (MULTI PATTERN) ЧАСТИ КОРПУСА

Схема запчастей Komatsu PC100-5Z - ЗАДН. КРЫШКА (MULTI PATTERN) ЧАСТИ КОРПУСА
FIT
1:1
100%

Артикул

Название

Примечание

Количество

1

203-916-5690

COVER ASS'Y

2

203-916-5680

SHEET

3

203-916-5760

SHEET

4

203-54-52471

SHEET

5

203-54-56720

SHEET

6

20D-54-41470

TRIM

7

203-54-56670

COVER

8

01010-51020

BOLT

9

01643-31032

WASHER

10

203-916-5610

BRACKET

11

01010-51025

BOLT

12

01643-31032

WASHER

13

203-916-5620

BRACKET

14

01010-51025

BOLT

15

01643-31032

WASHER

16

203-916-5650

BRACKET

17

01010-51040

BOLT

18

01643-31032

WASHER

19

01010-51030

BOLT

20

01643-31032

WASHER

21

203-916-5740

SHEET

22

203-916-5750

PLATE

23

01010-51030

BOLT

24

01643-31032

WASHER

25

09412-10002

SEAL

26

203-54-55910

SHEET

27

203-54-58290

COVER

28

01010-51020

BOLT

29

01643-31032

WASHER

30

01010-51025

BOLT

31

01643-31032

WASHER

32

203-54-56920

COLLAR

33

113-54-31350

SEAT

34

01010-51035

BOLT

35

01643-31032

WASHER

36

203-54-52233

COVER

|36

203-978-5570

COVER,(WITH CAR COOLER)

37

203-54-56850

BRACKET

38

20X-62-21550

SPACER

39

07000-03025

O-RING

40

01010-51250

BOLT

41

01643-31232

WASHER

42

203-62-42770

CUSHION

43

566-35-42430

PLATE

44

01016-51040

BOLT

45

01010-51050

BOLT

46

01010-51025

BOLT

47

01643-31032

WASHER

Выбрано товаров: 48