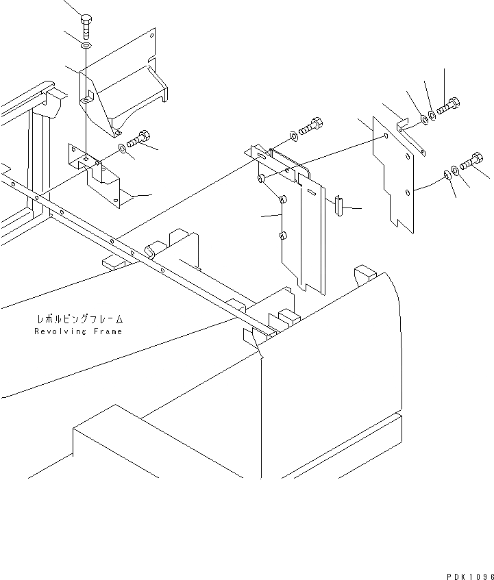
Запчасти Komatsu PC100L-6 ПЕРЕГОРОДКА. (КРЫШКАПРАВ.)(№8-99) ЧАСТИ КОРПУСА

Схема запчастей Komatsu PC100L-6 - ПЕРЕГОРОДКА. (КРЫШКАПРАВ.)(№8-99) ЧАСТИ КОРПУСА
1
2
3
4
5
6
7
8
9
10
11
12
13
14
15
16
FIT
1:1
100%

Артикул

Название

Примечание

Количество

1

203-54-63892

COVER

2

203-54-63310

SEAL

3

203-54-61671

SHEET

4

01010-51230

BOLT

5

01641-21423

WASHER

6

124-54-26540

WASHER

7

203-54-61682

PLATE

8

01010-51225

BOLT

9

01641-21423

WASHER

10

01643-31232

WASHER

11

01010-51230

BOLT

12

01643-31232

WASHER

13

01010-51220

BOLT

14

01643-31232

WASHER

15

203-54-61652

COVER

16

203-54-61662

COVER

Выбрано товаров: 16