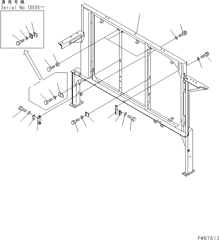
Запчасти Komatsu PC1100-6 ПЕРЕГОРОДКА. (КРЫШКАВ СБОРЕ) (РАМА) ЧАСТИ КОРПУСА

Схема запчастей Komatsu PC1100-6 - ПЕРЕГОРОДКА. (КРЫШКАВ СБОРЕ) (РАМА) ЧАСТИ КОРПУСА
1
2
2
3
3
4
4
5
5
6
6
7
7
8
9
9
9A
10
10
10
11
11
11
12
13
FIT
1:1
100%

Артикул

Название

Примечание

Количество

1

21N-54-31413

FRAME

2

21N-54-31280

BRACKET

3

01010-81230

BOLT

4

01643-31232

WASHER

5

205-54-51970

DOVE TAIL

6

01010-80616

BOLT

7

01643-30623

WASHER

8

209-54-63260

BRACKET

9

21N-54-32980

BRACKET

|9

21N-54-31290

BRACKET

9A

209-54-63260

BRACKET

10

01010-81230

BOLT

11

01643-31232

WASHER

12

20Y-54-11611

STOPPER

13

01580-11008

NUT

Выбрано товаров: 15