Запчасти Komatsu PC1100SP-6 ОХЛАЖД-Е (КРЕПЛЕНИЕ И СМАЗЫВАЮЩ. ЛИНИЯ)(№8-) СИСТЕМА ОХЛАЖДЕНИЯ

Схема запчастей Komatsu PC1100SP-6 - ОХЛАЖД-Е (КРЕПЛЕНИЕ И СМАЗЫВАЮЩ. ЛИНИЯ)(№8-) СИСТЕМА ОХЛАЖДЕНИЯ
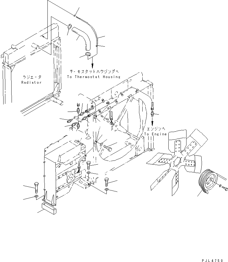
1
2
3
4
5
6
7
8
8
9
10
11
11
11
12
12
12
13
14
15
16
16
17
18
18
FIT
1:1
100%

Артикул

Название

Примечание

Количество

1

01010-82065

BOLT

2

01643-32060

WASHER

3

01010-81640

BOLT

4

01643-31645

WASHER

5

21N-03-31191

SPACER

6

01011-81650

BOLT

7

01643-31645

WASHER

8

04435-51210

CLIP

9

01010-81020

BOLT

10

01643-31032

WASHER

11

205-70-51390

NIPPLE

12

07020-00000

FITTING

13

20D-62-16540

NIPPLE

14

04122-22569

V-BELT SET

15

21N-03-31690

HOSE

15

21N-03-31280

HOSE

16

07289-00095

CLAMP

17

07261-20910

HOSE

18

07281-00197

CLAMP

Выбрано товаров: 19