Запчасти Komatsu PC120-5Z ГИДРОЛИНИЯ (МАСЛООХЛАДИТЕЛЬ И ВОЗВРАТ. ЛИНИЯ) (/) (ИЗМЕЛЬЧИТЕЛЬ И ДРУГОЕ НАВЕСН. ОБОРУД) УПРАВЛ-Е РАБОЧИМ ОБОРУДОВАНИЕМ

Схема запчастей Komatsu PC120-5Z - ГИДРОЛИНИЯ (МАСЛООХЛАДИТЕЛЬ И ВОЗВРАТ. ЛИНИЯ) (/)       (ИЗМЕЛЬЧИТЕЛЬ И ДРУГОЕ НАВЕСН. ОБОРУД) УПРАВЛ-Е РАБОЧИМ ОБОРУДОВАНИЕМ
FIT
1:1
100%

Артикул

Название

Примечание

Количество

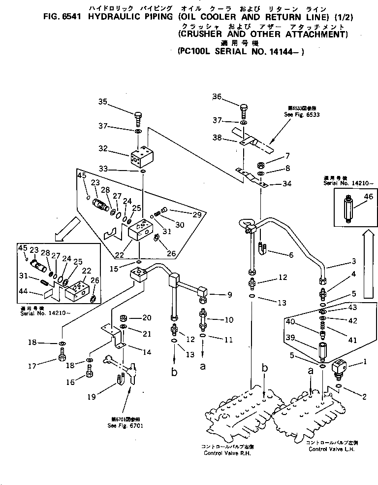
1

202-973-6310

ELBOW

2

07002-13334

O-RING

3

202-973-6231

TUBE

4

07230-20522

UNION

|4

07230-20522

UNION

5

07002-12434

O-RING

|5

07002-12434

O-RING

6

07283-22236

CLIP

7

01599-01011

NUT

8

01643-31032

WASHER

9

202-973-6242

TUBE

10

203-973-5440

TUBE

11

07002-12434

O-RING

12

07230-20522

UNION

|12

07230-20522

UNION

13

07002-12434

O-RING

|13

07002-12434

O-RING

14

203-973-5511

PLATE

15

07000-13030

O-RING

16

01010-51065

BOLT

17

01010-51060

BOLT

18

01643-31032

WASHER

19

07283-22236

CLIP

20

01599-01011

NUT

21

01643-31032

WASHER

|22

203-973-5500

VALVE ASS'Y

22

203-973-5901

VALVE ASS'Y

22

203-973-5942

BODY

|22

203-973-5941

BODY

23

202-973-6790

SPOOL

|23

203-973-3821

SPOOL

24

07000-13038

O-RING

|24

07000-13025

O-RING

25

07001-03038

RING,BACK-UP

|25

07001-03025

RING,BACK-UP

26

04064-03818

RING,SNAP

|26

04064-03015

RING,SNAP

27

07000-13032

O-RING

28

07001-03032

RING,BACK-UP

29

07043-00108

PLUG

30

236-10-12240

SPRING

31

04025-00412

PIN,SPRING

|31

04260-00793

BALL

32

203-973-5962

BLOCK

33

07000-13030

O-RING

34

203-973-5490

PLATE

35

01010-51085

BOLT

36

01010-51090

BOLT

37

01643-31032

WASHER

38

144-874-6960

CLIP

|39

203-62-56500

VALVE ASS'Y

39

203-62-56580

BLOCK

40

203-60-21250

POPPET

41

203-60-21260

SPRING

42

203-60-21270

SEAT

43

04065-02212

RING,SNAP

44

203-00-56630

PLATE¤ MARK

|44

201-00-61290

PLATE¤ MARK

45

203-00-56640

PLATE¤ MARK

|45

203-00-58110

PLATE¤ MARK

46

203-62-56590

BLOCK

Выбрано товаров: 61