Запчасти Komatsu PC120-6S РАМА(№-999) ЧАСТИ КОРПУСА

Схема запчастей Komatsu PC120-6S - РАМА(№-999) ЧАСТИ КОРПУСА
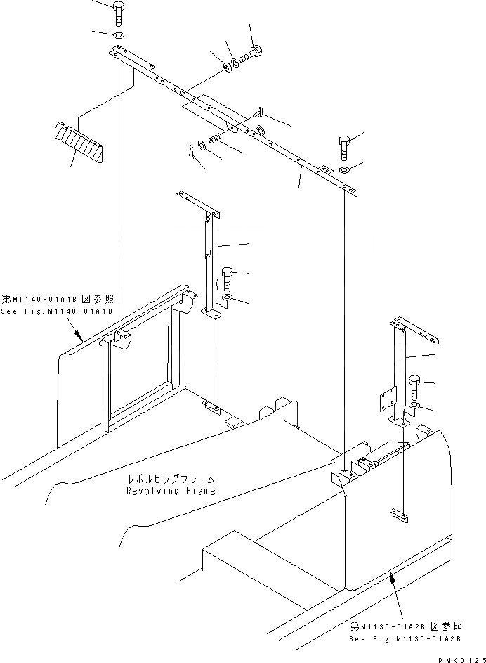
1
2
3
4
5
6
7
8
9
10
11
12
13
13
14
14
15
16
17
FIT
1:1
100%

Артикул

Название

Примечание

Количество

1

203-54-66620

FRAME,L.H.

2

01010-51230

BOLT

3

01643-31232

WASHER

4

203-54-63151

FRAME

5

01010-51230

BOLT

6

01643-31232

WASHER

7

203-54-62962

FRAME

|7

203-54-62961

FRAME

8

09459-11033

LOCK

9

09459-01614

SPRING

10

04050-03015

PIN

11

01642-21016

WASHER

12

203-54-62970

SHEET

13

01010-51230

BOLT

14

01643-31232

WASHER

15

01010-51230

BOLT

16

20Y-54-15740

COLLAR

17

01643-31232

WASHER

Выбрано товаров: 18