Запчасти Komatsu PC120-6S ДВЕРЬ ПРАВ.(№-999) ЧАСТИ КОРПУСА

Схема запчастей Komatsu PC120-6S - ДВЕРЬ ПРАВ.(№-999) ЧАСТИ КОРПУСА
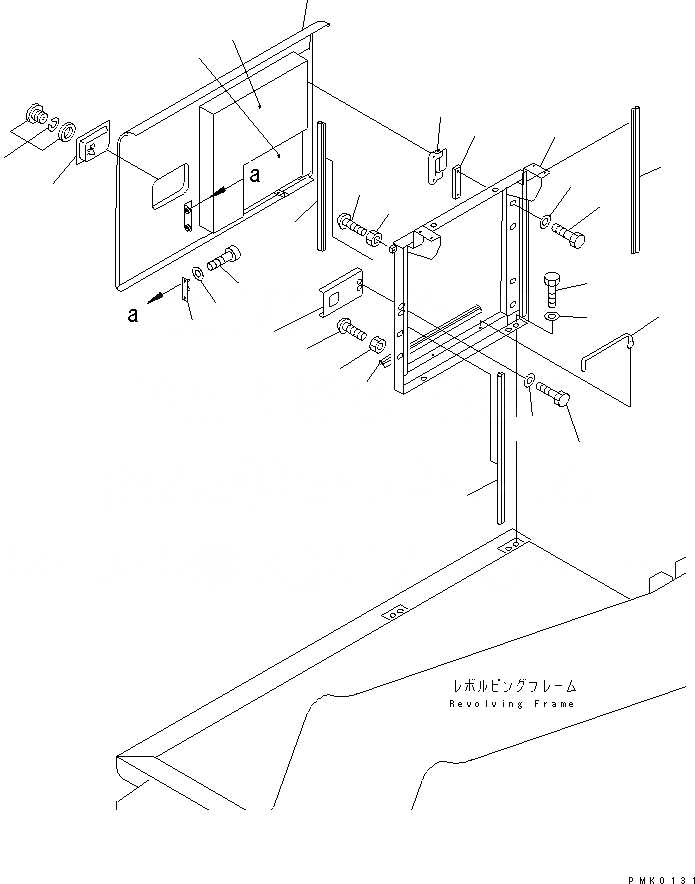
1
2
3
4
5
6
7
8
9
10
11
12
13
14
15
16
17
18
18
19
19
20
21
22
23
24
25
FIT
1:1
100%

Артикул

Название

Примечание

Количество

1

203-54-66521

COVER,R.H.

2

421-54-11372

LOCK ASS'Y (WELDED)

3

421-54-11381

LOCK

4

203-54-62180

HINGE (WELDED)

5

203-54-66561

SHEET

6

203-54-66571

SHEET

7

203-54-62190

PLATE

8

01010-51235

BOLT

9

01643-31232

WASHER

10

203-54-63740

FRAME

11

20Y-54-29232

BAR

12

203-54-63130

PLATE

13

01010-51220

BOLT

14

01643-31232

WASHER

15

203-54-63750

BRACKET

16

01010-50616

BOLT

17

01643-30623

WASHER

18

203-54-63830

STOPPER

19

01580-11008

NUT

20

20Y-54-29261

SEAL

21

203-54-63251

SEAL

22

203-54-63241

SEAL

23

09412-00006

SEAL

24

01010-51230

BOLT

25

01643-31232

WASHER

Выбрано товаров: 25