Запчасти Komatsu PC120-6Z ПЕРЕГОРОДКА. (КРЫШКАПРАВ.) (С НАВЕСН.ОБОРУД. ФИЛЬТР.) (ХОЛОДН. (A) СПЕЦ-Я.)(№977-) ЧАСТИ КОРПУСА

Схема запчастей Komatsu PC120-6Z - ПЕРЕГОРОДКА. (КРЫШКАПРАВ.) (С НАВЕСН.ОБОРУД. ФИЛЬТР.) (ХОЛОДН. (A) СПЕЦ-Я.)(№977-) ЧАСТИ КОРПУСА
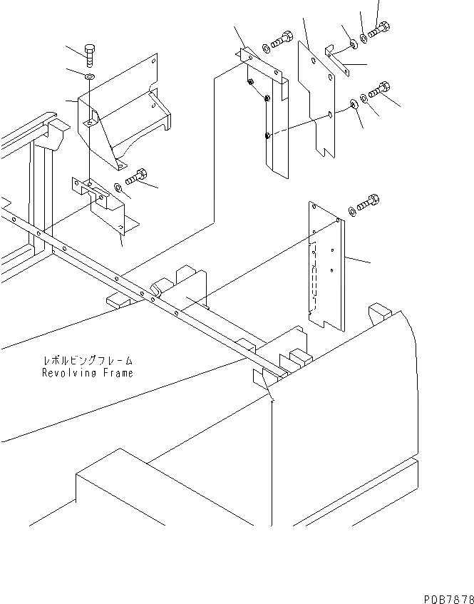
1
2
3
4
5
6
7
8
9
10
11
12
13
14
15
16
FIT
1:1
100%

Артикул

Название

Примечание

Количество

1

203-54-81261

COVER

2

203-54-81371

COVER

3

203-54-81630

SHEET

4

01010-81230

BOLT

5

01641-21423

WASHER

6

124-54-26540

WASHER

7

203-54-81640

PLATE

8

01010-81225

BOLT

9

01641-21423

WASHER

10

01643-31232

WASHER

11

01010-81230

BOLT

12

01643-31232

WASHER

13

01010-81220

BOLT

14

01643-31232

WASHER

15

203-54-61652

COVER

16

203-54-61662

COVER

Выбрано товаров: 16