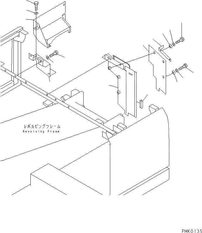
Запчасти Komatsu PC120-6Z ПЕРЕГОРОДКА. (КРЫШКАПРАВ.)(№-999) ЧАСТИ КОРПУСА

Схема запчастей Komatsu PC120-6Z - ПЕРЕГОРОДКА. (КРЫШКАПРАВ.)(№-999) ЧАСТИ КОРПУСА
1
2
3
4
5
6
7
8
9
10
11
12
13
14
15
16
FIT
1:1
100%

Артикул

Название

Примечание

Количество

1

203-54-63892

COVER

2

203-54-63310

SEAL

3

203-54-61671

SHEET

4

01010-51230

BOLT

5

01641-21423

WASHER

6

124-54-26540

WASHER

7

203-54-61682

PLATE

8

01010-51225

BOLT

9

01641-21423

WASHER

10

01643-31232

WASHER

11

203-54-61652

COVER

12

01010-51230

BOLT

13

01643-31232

WASHER

14

203-54-61662

COVER

15

01010-51230

BOLT

16

01643-31232

WASHER

Выбрано товаров: 16