Запчасти Komatsu PC120-6Z ОСНОВН. КОНСТРУКЦИЯ (ПРАВ. СТОЙКА) (СТОЙКА И ОТВАЛ УПРАВЛ-Е) (С ОТВАЛ)(№7-) КАБИНА ОПЕРАТОРА И СИСТЕМА УПРАВЛЕНИЯ

Схема запчастей Komatsu PC120-6Z - ОСНОВН. КОНСТРУКЦИЯ (ПРАВ. СТОЙКА) (СТОЙКА И ОТВАЛ УПРАВЛ-Е) (С ОТВАЛ)(№7-) КАБИНА ОПЕРАТОРА И СИСТЕМА УПРАВЛЕНИЯ
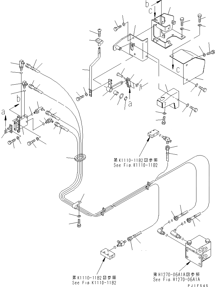
1
2
3
4
5
6
7
7
8
8
9
9
9
9
10
10
10
10
11
11
12
12
13
13
13
13
14
14
15
15
16
17
18
18
18
19
19
19
20
21
22
23
24
25
26
27
28
29
30
31
32
33
34
35
36
36
37
37
38
39
40
41
42
43
44
FIT
1:1
100%

Артикул

Название

Примечание

Количество

1

203-910-8120

BRACKET

2

01010-81025

BOLT

3

01643-31032

WASHER

4

21Y-43-11191

VALVE ASS'Y

5

01010-81025

BOLT

6

01643-31032

WASHER

7

21P-62-11590

ELBOW

8

20U-62-22430

ELBOW

9

07000-12011

O-RING

10

201-62-65930

HOSE

11

203-62-62470

MARK¤ P5

12

203-62-62510

MARK¤ T5

13

20Y-62-23791

HOSE

14

203-62-62420

MARK¤ 15

15

203-62-62430

MARK¤ 16

16

176-911-4160

GROMMET

17

203-910-8140

COVER

18

01010-81020

BOLT

19

01643-31032

WASHER

20

203-910-8130

LEVER

21

01010-81030

BOLT

22

01643-31032

WASHER

23

201-43-62120

KNOB

24

01225-70520

SCREW

25

203-910-8110

BRACKET

26

203-910-6220

LEVER

27

09350-02225

BUSHING

28

01640-22232

WASHER

29

04064-02212

RING

30

205-45-11750

YOKE

31

04205-11028

PIN

32

01641-21016

WASHER

33

04050-13020

PIN

34

203-910-6231

BRACKET

35

203-910-6211

COVER

36

01010-80816

BOLT

37

01643-30823

WASHER

38

01010-81020

BOLT

39

01643-31032

WASHER

40

01010-80816

BOLT

41

01643-30823

WASHER

42

04434-52711

CLIP

43

01010-81016

BOLT

44

01643-31032

WASHER

Выбрано товаров: 44