Запчасти Komatsu PC120-6Z КЛАПАН ВЕРХН. ЧАСТЬ (DUST ЗАЩИТА СПЕЦ-Я.)(№9-) ЧАСТИ КОРПУСА

Схема запчастей Komatsu PC120-6Z - КЛАПАН ВЕРХН. ЧАСТЬ (DUST ЗАЩИТА СПЕЦ-Я.)(№9-) ЧАСТИ КОРПУСА
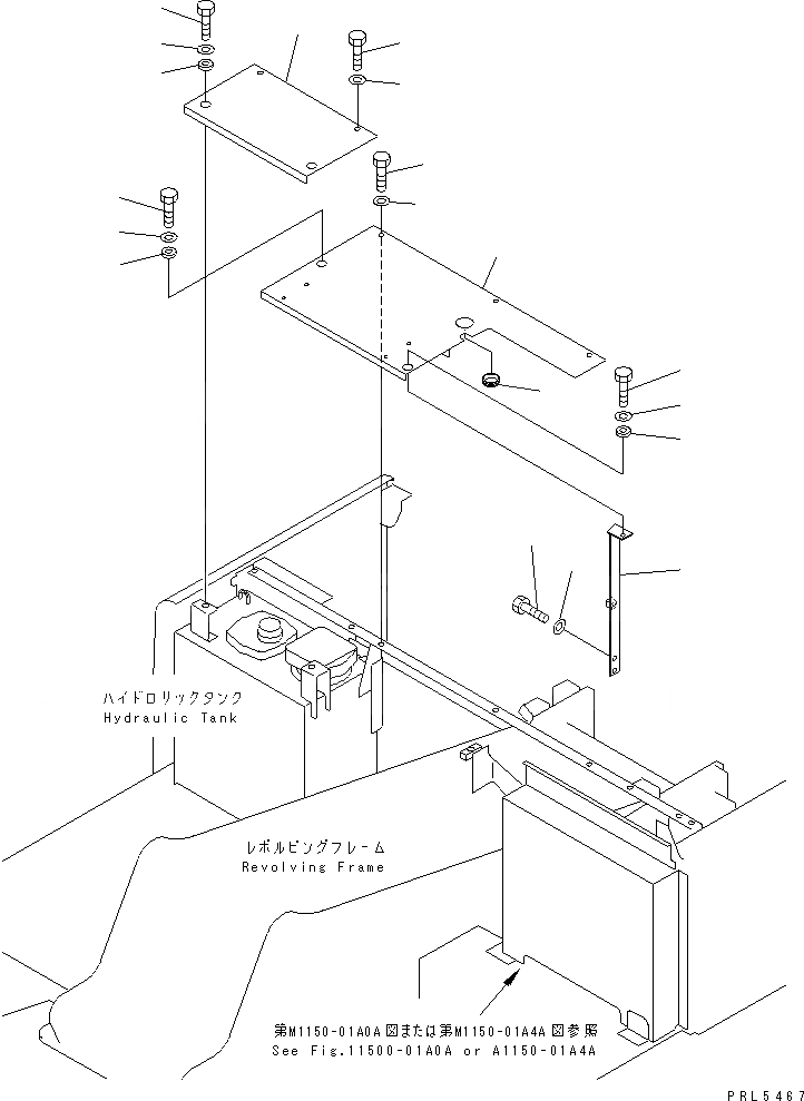
1
2
3
4
5
6
7
8
9
10
11
11
12
12
13
13
14
15
16
FIT
1:1
100%

Артикул

Название

Примечание

Количество

1

203-54-66790

PLATE

2

01010-81230

BOLT

3

01643-31232

WASHER

4

01010-81230

BOLT

5

01643-31232

WASHER

6

203-54-62670

COLLAR

7

203-54-65732

COVER

|7

203-54-65731

COVER

8

08037-05016

GROMMET

9

01010-81230

BOLT

10

01643-31232

WASHER

11

01010-81230

BOLT

12

01643-31232

WASHER

13

203-54-62670

COLLAR

14

203-977-8180

FRAME

15

01010-81225

BOLT

16

01643-31232

WASHER

Выбрано товаров: 17