Запчасти Komatsu PC1250-8 ЭЛЕКТРИЧ. ПРОВОДКА, ТОПЛИВН. PОБОД КОЛЕСАING НАСОС ПЕРЕКЛЮЧАТЕЛЬ (№8-) ЭЛЕКТРИЧ. ПРОВОДКА, С VHMS, АВТОМАТИЧ.-СИСТ. СМАЗКИ СИСТЕМА

Схема запчастей Komatsu PC1250-8 - ЭЛЕКТРИЧ. ПРОВОДКА, ТОПЛИВН. PОБОД КОЛЕСАING НАСОС ПЕРЕКЛЮЧАТЕЛЬ (№8-) ЭЛЕКТРИЧ. ПРОВОДКА, С VHMS, АВТОМАТИЧ.-СИСТ. СМАЗКИ СИСТЕМА
3
5
6
4
2
1
7
FIT
1:1
100%

Артикул

Название

Примечание

Количество

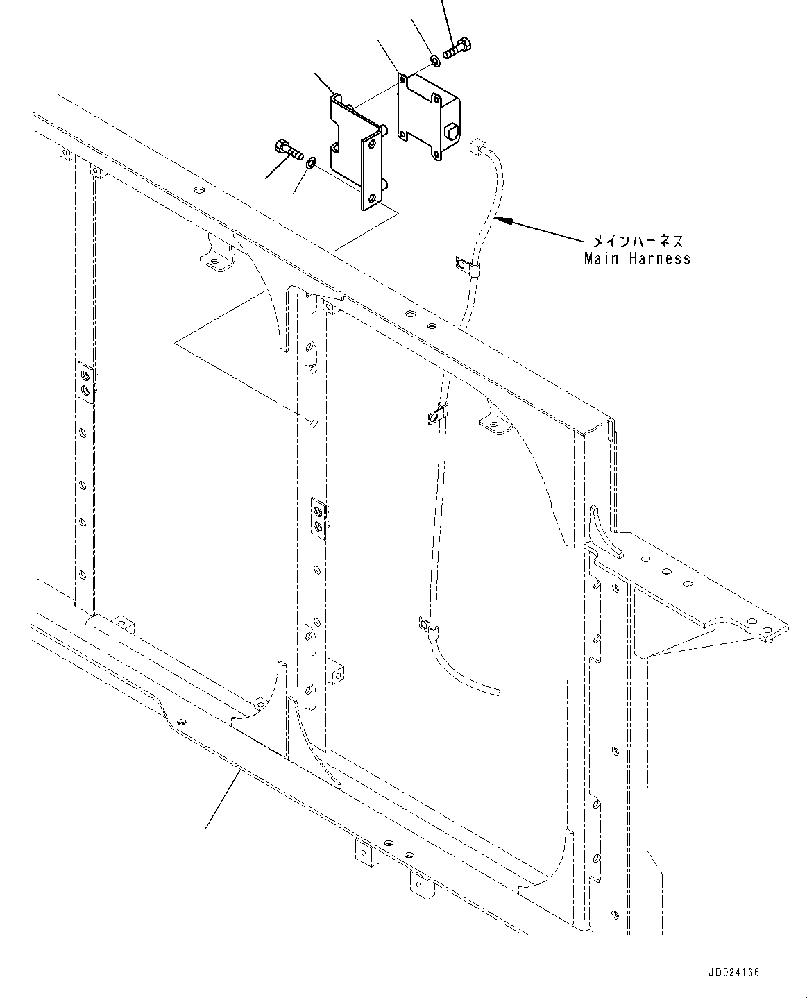
1

600-815-9471

Switch

2

01010-80816

Bolt

3

01643-30823

Washer

4

21N-06-41251

Bracket

5

01010-81230

Bolt

6

01643-31232

Washer

7

21N-54-41410

Frame

|$7

21N-54-41411

Frame

Выбрано товаров: 8