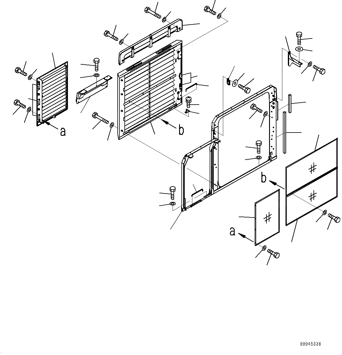
Запчасти Komatsu PC1250-8 БОКОВ. КРЫШКА ПРАВ., (№8-) БОКОВ. КРЫШКА ПРАВ.

Схема запчастей Komatsu PC1250-8 - БОКОВ. КРЫШКА ПРАВ., (№8-) БОКОВ. КРЫШКА ПРАВ.
1
2
3
4
5
6
7
8
9
12
13
14
17
23
26
27
28
32
40
45
46
47
10
11
18
19
21
20
24
25
41
42
43
44
22
16
15
30
29
33
31
28
36
37
35
34
39
38
FIT
1:1
100%

Артикул

Название

Примечание

Количество

1

21N-54-41311

Frame

2

21N-53-31420

Sheet

3

21N-53-31430

Sheet

4

22U-54-24180

Bar

5

21N-54-41331

Cover

6

01010-81230

Bolt

7

01643-31232

Washer

8

21N-54-41321

Duct

9

21K-54-22460

Hinge,Welded

10

01010-81230

Bolt

11

01643-31232

Washer

12

01010-81240

Bolt

13

01643-31232

Washer

14

21N-54-41340

Net

15

01010-80816

Bolt

16

01643-30823

Washer

17

21N-54-41361

Cover

18

01010-81280

Bolt

19

01643-31232

Washer

20

01011-81200

Bolt

21

01643-31232

Washer

22

21N-54-41351

Duct

23

21K-54-22460

Hinge,Welded

24

01010-81230

Bolt

25

01643-31232

Washer

26

01011-81220

Bolt

27

01643-31232

Washer

28

21N-54-41370

Net

29

01010-80816

Bolt

30

01643-30823

Washer

31

20Y-54-29232

Bar

32

20B-54-12210

Spring

33

01023-10408

Screw

34

01010-81230

Bolt

35

01643-31232

Washer

36

01010-81250

Bolt

37

01643-31232

Washer

38

01010-81230

Bolt

39

124-54-26540

Washer

40

21N-54-41380

Bracket

41

01010-81230

Bolt

42

175-54-34170

Washer

43

01010-81230

Bolt

44

01643-31232

Washer

45

21N-54-31560

Bracket

46

01010-81225

Bolt

47

175-54-34170

Washer

Выбрано товаров: 47