Качественные детали и логистика
Оригинальные и аналоговые запчасти с доставкой по России, Казахстану и Беларуси
©2022 PartSell ООО "Система" ИНН 2463123282 ОГРН 1212400004838
Центральный офис: г. Красноярск, Академика Киренского, д.87, пом.4
Телефон: 8 (800) 777-65-74 Email: zakaz@partsell.ru
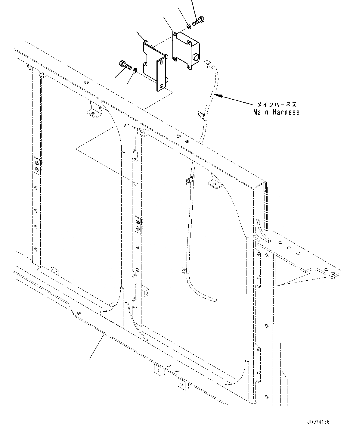
ЭЛЕКТРИЧ. ПРОВОДКА, ТОПЛИВН. PОБОД КОЛЕСАING НАСОС ПЕРЕКЛЮЧАТЕЛЬ (№-)
№
Артикул
Название
Примечание
Количество
1
600-815-9471
Switch
2
01010-80816
Bolt
3
01643-30823
Washer
4
21N-06-41251
Bracket
5
01010-81230
6
01643-31232
7
21N-54-43391
Frame
|$7
21N-54-43390
Выбрано товаров: 0