Запчасти Komatsu PC1250LC-8 ОХЛАЖД-Е (МАСЛООХЛАДИТЕЛЬ)(№-) СИСТЕМА ОХЛАЖДЕНИЯ

Схема запчастей Komatsu PC1250LC-8 - ОХЛАЖД-Е (МАСЛООХЛАДИТЕЛЬ)(№-) СИСТЕМА ОХЛАЖДЕНИЯ
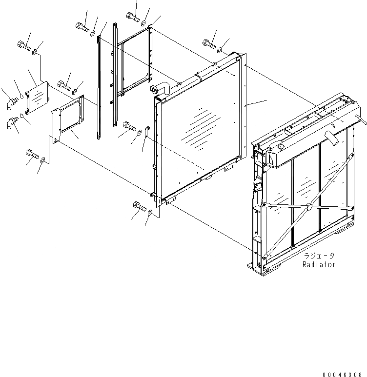
1
2
3
4
5
6
7
8
9
10
10
11
11
12
13
14
15
16
17
18
19
20
21
22
23
24
FIT
1:1
100%

Артикул

Название

Примечание

Количество

1

21N-03-41120

OIL COOLER ASS'Y

2

01010-81030

BOLT

3

01643-31032

WASHER

4

01010-81430

BOLT

5

01643-31445

WASHER

6

21N-03-41410

BRACKET

7

01010-81235

BOLT

8

01643-31232

WASHER

9

21N-03-41420

BRACKET

10

01010-81235

BOLT

11

01643-31232

WASHER

12

21N-03-41180

OIL COOLER ASS'Y

13

01010-80825

BOLT

14

01643-30823

WASHER

15

02782-10516

ELBOW

16

07002-12034

O-RING

17

02782-10518

ELBOW

18

07002-12034

O-RING

19

21N-03-41431

BRACKET

20

01010-81235

BOLT

21

01643-31232

WASHER

22

21N-03-41440

BRACKET

23

01010-81225

BOLT

24

01643-31232

WASHER

Выбрано товаров: 24