Запчасти Komatsu PC1250LC-8 ЗАЩИТН. КРЫШКИ (ДЛЯ НИЗ. КАБИНА И НИЗ. ДВОРНИКИ) (С ФРОНТАЛЬНАЯ ЗАЩИТА)(№8-) КАБИНА ОПЕРАТОРА И СИСТЕМА УПРАВЛЕНИЯ

Схема запчастей Komatsu PC1250LC-8 - ЗАЩИТН. КРЫШКИ (ДЛЯ НИЗ. КАБИНА И НИЗ. ДВОРНИКИ) (С ФРОНТАЛЬНАЯ ЗАЩИТА)(№8-) КАБИНА ОПЕРАТОРА И СИСТЕМА УПРАВЛЕНИЯ
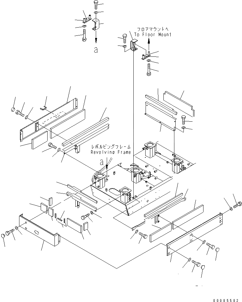
1
2
3
4
5
6
6
7
7
8
9
10
11
12
13
14
15
16
17
18
19
20
21
22
23
24
24
24
24
25
26
27
28
29
30
31
32
33
34
35
36
37
38
39
40
41
42
42
43
43
44
44
45
45
46
46
47
47
48
48
FIT
1:1
100%

Артикул

Название

Примечание

Количество

1

21N-54-39784

COVER

2

21N-53-31770

SHEET

3

21N-53-31780

SHEET

4

01010-81230

BOLT

5

01643-31232

WASHER

6

01010-81230

BOLT

7

175-54-34170

WASHER

8

21N-53-31441

COVER

9

21N-53-31790

SHEET

10

21N-53-31810

SHEET

11

21N-53-31820

SHEET

12

21N-53-31830

SHEET

13

21N-53-31840

SHEET

14

21N-53-31850

SHEET

15

21N-53-31860

SHEET

16

01010-81225

BOLT

17

01643-31232

WASHER

18

21N-54-39812

COVER

19

209-54-74670

SEAL

20

21N-53-31730

SHEET

21

21N-53-31740

SHEET

22

01010-81230

BOLT

23

01643-31232

WASHER

24

21N-53-31870

CAP

25

21N-54-39821

COVER

26

21N-53-31750

SHEET

27

21N-54-39861

SEAL

28

01010-81235

BOLT

29

01643-31232

WASHER

30

21N-53-32441

FRAME

31

21N-53-32450

SEAL

32

01010-81230

BOLT

33

01643-31232

WASHER

34

21N-54-39841

FRAME

35

21N-54-39881

SEAL

36

01010-81230

BOLT

37

01643-31232

WASHER

38

21N-54-39851

FRAME

39

21N-54-39891

SEAL

40

01010-81230

BOLT

41

01643-31232

WASHER

42

21N-53-32460

BRACKET

43

21N-53-32470

SHEET

44

01011-81625

BOLT

45

01643-31645

WASHER

46

21N-53-32480

BRACKET

47

01010-81640

BOLT

48

01643-31645

WASHER

Выбрано товаров: 48