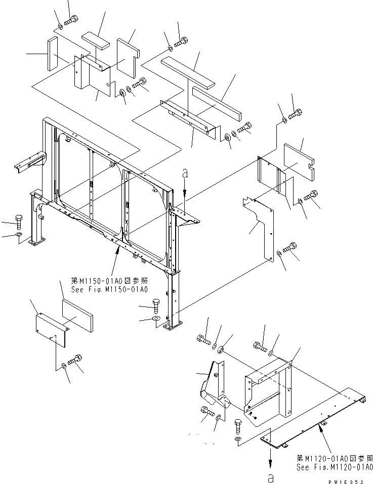
Запчасти Komatsu PC1250SE-7 ПЕРЕГОРОДКА. (КАБИНА) ЧАСТИ КОРПУСА

Схема запчастей Komatsu PC1250SE-7 - ПЕРЕГОРОДКА. (КАБИНА) ЧАСТИ КОРПУСА
1
2
3
4
5
6
7
8
9
9
10
10
11
12
13
14
15
15
16
16
17
18
19
20
21
22
23
23
24
24
25
26
27
28
29
30
31
31
32
32
33
34
35
FIT
1:1
100%

Артикул

Название

Примечание

Количество

1

01010-81230

BOLT

2

01643-31232

WASHER

3

01010-81230

BOLT

4

175-54-34170

WASHER

5

21N-53-31610

COVER

6

21N-53-31580

SHEET

7

21N-53-31590

SHEET

8

21N-54-39480

SHEET

9

01010-81230

BOLT

10

01643-31232

WASHER

11

203-54-62670

COLLAR

12

21N-54-39351

COVER

13

21N-54-39461

SHEET

14

21N-54-39471

SHEET

15

01010-81230

BOLT

16

01643-31232

WASHER

17

203-54-62670

COLLAR

18

21N-53-31620

COVER

19

21N-54-39511

SHEET

20

01010-81230

BOLT

21

01643-31232

WASHER

22

21N-54-39372

PLATE

|22

21N-54-39371

PLATE

23

01010-81230

BOLT

24

01643-31232

WASHER

25

21N-54-39360

COVER

26

21N-54-39490

SHEET

27

01010-81230

BOLT

28

01643-31232

WASHER

29

21N-54-31471

COVER

30

208-54-57181

COLLAR

31

01010-81230

BOLT

32

01643-31232

WASHER

33

21N-54-39281

COVER

34

01010-81230

BOLT

35

01643-31232

WASHER

Выбрано товаров: 36