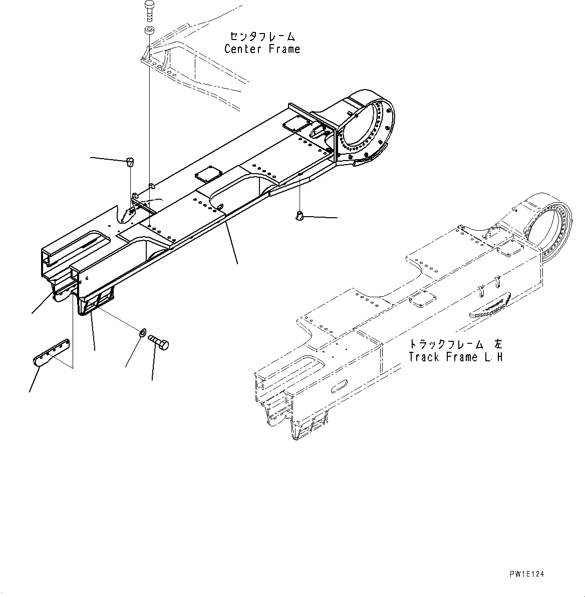
Запчасти Komatsu PC1250SP-8 ГУСЕНИЧНАЯ РАМА, ПРАВ. (№8-) ГУСЕНИЧНАЯ РАМА, С RUSTЗАЩИТА SPRING, С ПОЛН. LENGTH ЗАЩИТА ОПОРНЫХ КАТКОВ

Схема запчастей Komatsu PC1250SP-8 - ГУСЕНИЧНАЯ РАМА, ПРАВ. (№8-) ГУСЕНИЧНАЯ РАМА, С RUSTЗАЩИТА SPRING, С ПОЛН. LENGTH ЗАЩИТА ОПОРНЫХ КАТКОВ
8
1
2
7
6
5
4
3
FIT
1:1
100%

Артикул

Название

Примечание

Количество

1

21N-30-37121

Frame

2

21N-30-32211

Guard,Welded

3

21N-30-32221

Guard,Welded

4

21N-30-32232

Plate

5

01010-83060

Bolt

6

207-46-52130

Washer

7

07049-03038

Plug, Cork

8

07049-01822

Plug

Выбрано товаров: 8