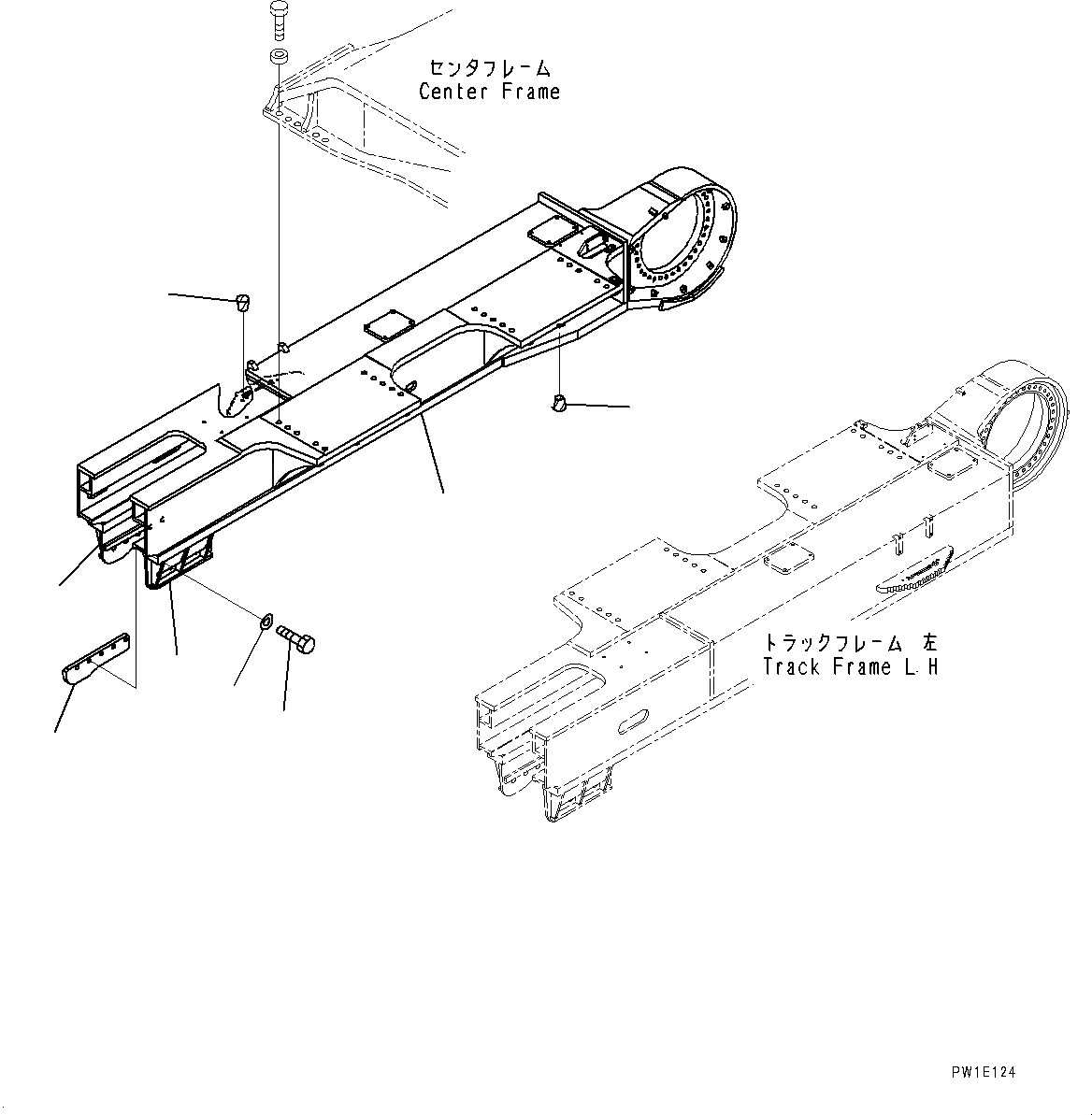
Запчасти Komatsu PC1250SP-8R ГУСЕНИЧНАЯ РАМА, ПРАВ. (№-) ГУСЕНИЧНАЯ РАМА, С RUSTЗАЩИТА SPRING
8
1
2
7
6
5
4
3
FIT
1:1
100%
№
Артикул
Название
Примечание
Количество
1
21N-30-37121
Frame
2
21N-30-32211
Guard,Welded
3
21N-30-32221
Guard,Welded
4
21N-30-32232
Plate
5
01010-83060
Bolt
6
207-46-52130
Washer
7
07049-03038
Plug, Cork
8
07049-01822
Plug
Выбрано товаров: 8