Запчасти Komatsu PC1250SP-8R ТОПЛИВН. ПОДАЮЩ. ТРУБЫ, КРЕПЛЕНИЕ (/) (№-) ТОПЛИВН. ПОДАЮЩ. ТРУБЫ, EXTRA BAD ТОПЛИВН. И ПЛОХ. ТОПЛИВО СПЕЦ-ЯIFICATION, ВОДН.+DUST, ДОПОЛН. ФИЛЬТР.

Схема запчастей Komatsu PC1250SP-8R - ТОПЛИВН. ПОДАЮЩ. ТРУБЫ, КРЕПЛЕНИЕ (/) (№-) ТОПЛИВН. ПОДАЮЩ. ТРУБЫ, EXTRA BAD ТОПЛИВН. И ПЛОХ. ТОПЛИВО СПЕЦ-ЯIFICATION, ВОДН.+DUST, ДОПОЛН. ФИЛЬТР.
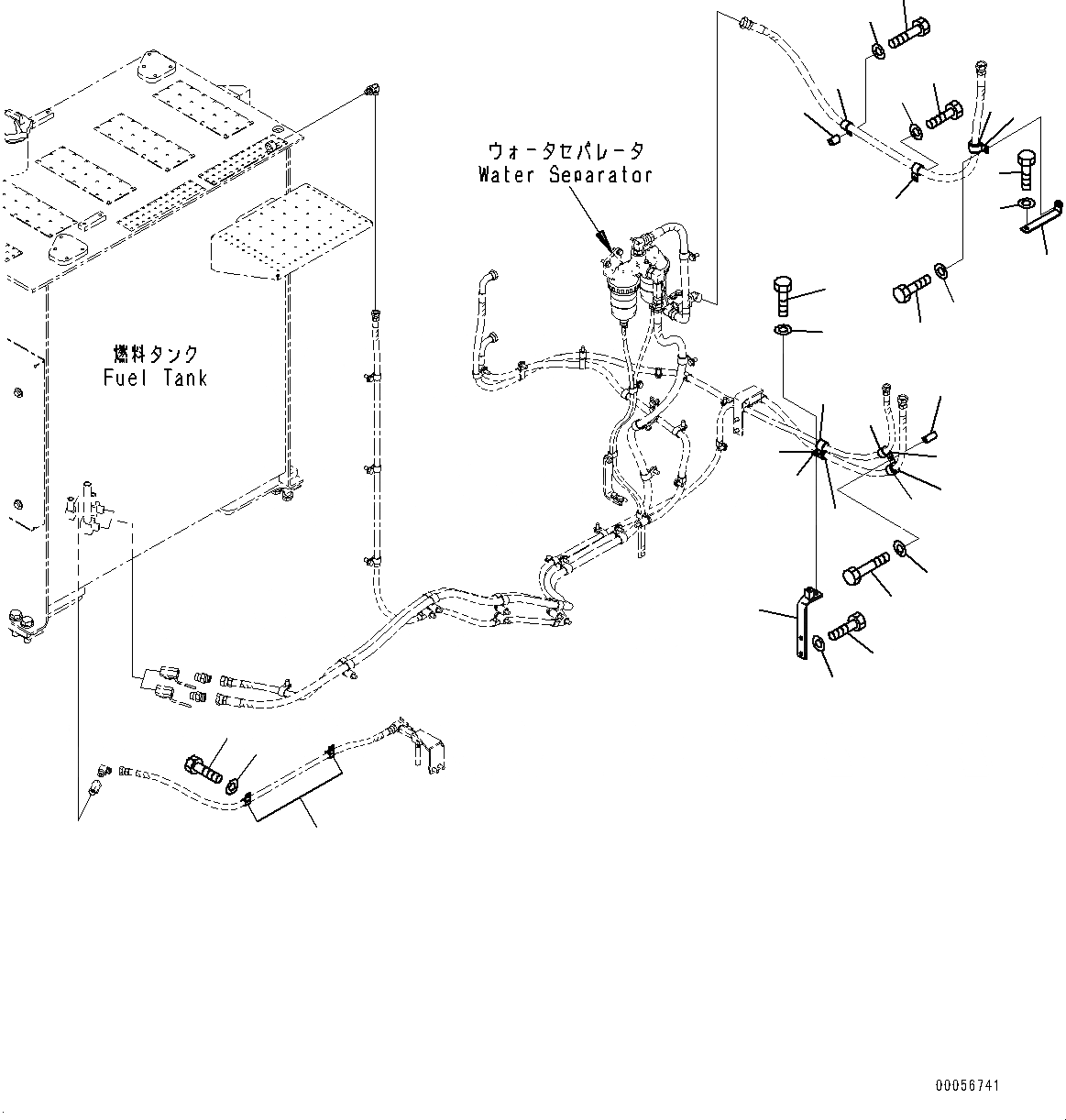
4
5
6
7
8
9
10
11
12
13
14
15
16
17
18
19
20
21
22
23
24
25
26
27
28
29
30
31
32
33
2
3
1
FIT
1:1
100%

Артикул

Название

Примечание

Количество

1

04434-51912

Clip

2

01010-81225

Bolt

3

01643-31232

Washer

4

21N-04-41151

Bracket

5

01010-81230

Bolt

6

01643-31232

Washer

7

04434-53412

Clip

8

07095-20627

Cushion

9

01010-81225

Bolt

10

01643-31232

Washer

11

04434-52712

Clip

12

01010-81225

Bolt

13

01643-31232

Washer

14

04434-52712

Clip

15

01010-81260

Bolt

16

01643-31232

Washer

17

20Y-03-11220

Collar

18

04434-53211

Clip

19

07095-20523

Cushion

20

04434-52711

Clip

21

07095-20418

Cushion

22

01010-81085

Bolt

23

01643-31032

Washer

24

6152-51-5520

Spacer

25

21N-04-41130

Bracket

26

01010-81230

Bolt

27

01643-31232

Washer

28

04434-53212

Clip

29

07095-20523

Cushion

30

04434-52712

Clip

31

07095-20418

Cushion

32

01010-81230

Bolt

33

01643-31232

Washer

Выбрано товаров: 0