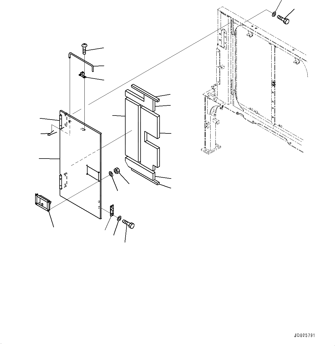
Запчасти Komatsu PC1250SP-8R КАБИНА ПЕРЕГОРОДКА., КРЫШКА(/) (№7-) КАБИНА ПЕРЕГОРОДКА., EXTREME HOT AREA СПЕЦ-ЯIFICATION ( DEG C)

Схема запчастей Komatsu PC1250SP-8R - КАБИНА ПЕРЕГОРОДКА., КРЫШКА(/) (№7-) КАБИНА ПЕРЕГОРОДКА., EXTREME HOT AREA СПЕЦ-ЯIFICATION ( DEG C)
14
13
1
15
7
4
5
6
2
3
10
11
12
18
19
8
4
9
16
17
FIT
1:1
100%

Артикул

Название

Примечание

Количество

1

21N-54-39321

Cover

2

21N-54-32540

Sheet

3

21N-54-32550

Sheet

4

21N-54-32940

Sheet

5

21N-54-39520

Sheet

6

21N-54-39531

Sheet

7

21T-54-73190

Hinge,Welded

8

205-54-53550

Dovetail

9

01010-80616

Bolt

10

01643-30623

Washer

11

205-54-64140

Bar

12

04050-13018

Pin

13

20B-54-12210

Spring

14

01023-10408

Screw

15

198-54-55990

Lock

16

01580-10806

Nut

17

01643-30823

Washer

18

01010-81230

Bolt

19

01643-31232

Washer

Выбрано товаров: 19