Запчасти Komatsu PC1250SP-8R ВЫПУСКН. B

Схема запчастей Komatsu PC1250SP-8R - ВЫПУСКН. B
2
56
55
1
56
40
46
41
29
44
47
31
45
3
42
4
43
27
42
37
28
38
35
26
31
36
48
46
49
39
47
51
50
49
48
52
54
53
5
30
25
32
34
18
16
33
19
17
19
11
17
18
10
15
21
8
14
15
7
20
23
9
24
13
6
22
12
FIT
1:1
100%

Артикул

Название

Примечание

Количество

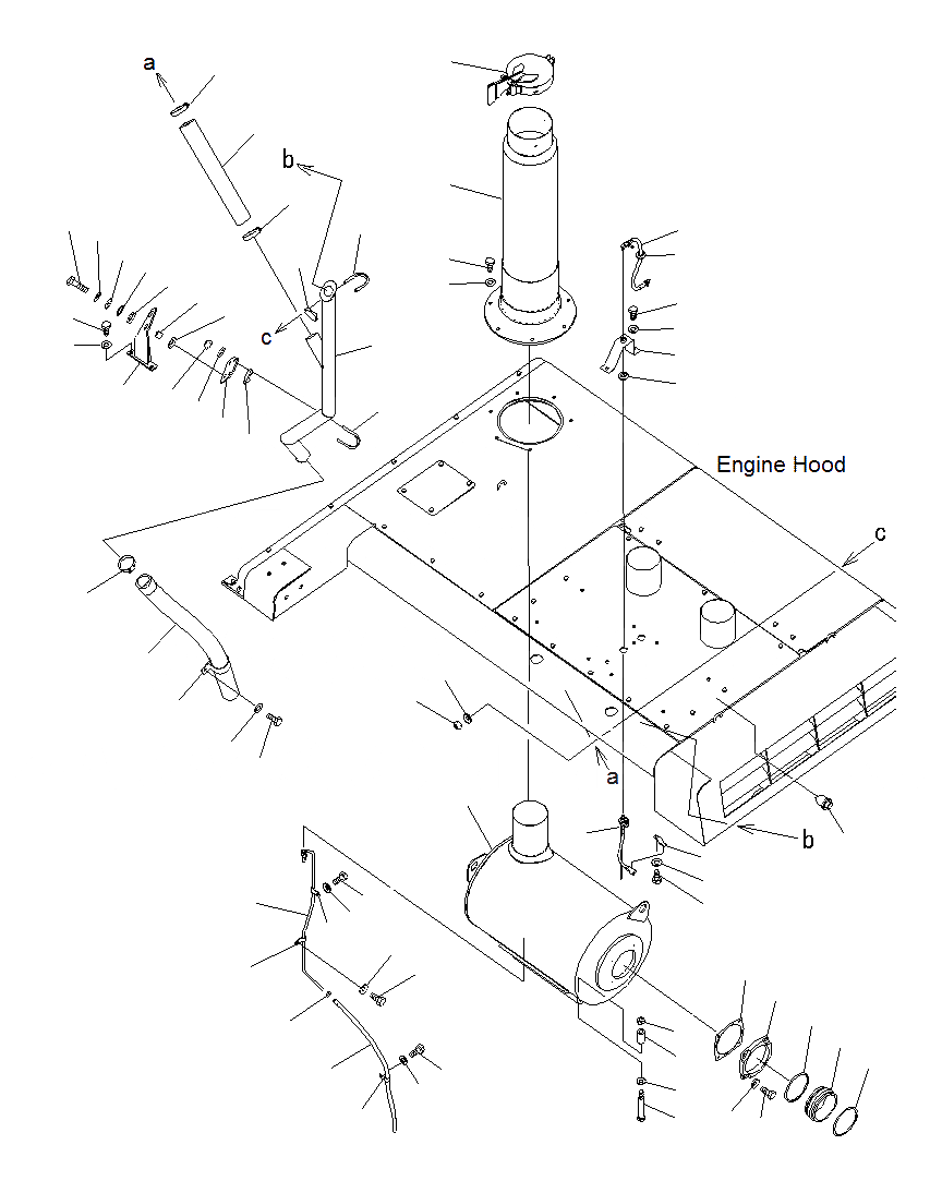
1

6245-11-5810

PIPE

2

6162-14-5640

RAIN CAP

3

01010-81235

BOLT

4

01643-31232

WASHER

5

6245-11-5500

MUFFLER

6

01010-E1285

BOLT

7

6142-22-4640

SPACER

8

01580-11210

NUT

9

01643-31232

WASHER

10

6245-11-5750

FLANGE

11

6240-11-5760

GASKET

12

01020-11025

BOLT

13

01643-31032

WASHER

14

6245-11-5740

JOINT

15

6162-13-5480

SEAL RING

16

6245-11-5510

TUBE

17

6162-13-5660

CLAMP

18

01010-81020

BOLT

19

01643-31032

WASHER

20

21N-01-41150

HOSE

21

07285-00150

CLIP

22

04434-51612

CLIP

23

01010-81225

BOLT

24

01643-31232

WASHER

25

08672-01000

DUST INDICATOR

26

21N-01-37220

BRACKET

27

01010-81230

BOLT

28

01643-31232

WASHER

29

08671-50060

HOSE

30

7861-93-1422

SENSOR

|$31

7861-93-1421

SENSOR

31

08037-02512

GROMMET

32

08193-21012

CLIP

33

01010-81225

BOLT

34

01643-31232

WASHER

35

21N-54-43351

TUBE

36

21N-54-43370

BRACKET

37

01010-81235

BOLT

38

01643-31232

WASHER

39

21N-54-43380

BRACKET

40

01010-81250

BOLT

41

01643-31232

WASHER

42

203-62-42770

CUSHION

43

21W-62-11620

SPACER

44

566-35-42430

PLATE

Выбрано товаров: 45