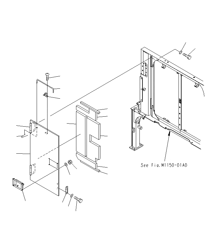
Запчасти Komatsu PC1250SP-8R ПЕРЕГОРОДКА. (КАБИНА)(COVER)(/7) M

Схема запчастей Komatsu PC1250SP-8R - ПЕРЕГОРОДКА. (КАБИНА)(COVER)(/7) M
19
18
14
11
13
4
2
5
7
6
12
1
3
16
4
17
15
8
10
9
FIT
1:1
100%

Артикул

Название

Примечание

Количество

1

21N-54-39321

COVER

2

21N-54-32540

SHEET

3

21N-54-32550

SHEET

4

21N-54-32940

SHEET

5

21N-54-39520

SHEET

6

21N-54-39531

SHEET

7

21T-54-73190

HINGE, WELDED

8

205-54-53550

DOVE TAIL

9

01010-80616

BOLT

10

01643-30623

WASHER

11

205-54-64140

BAR

12

04050-13018

PIN

13

20B-54-12210

SPRING

14

01023-10408

SCREW

15

198-54-55990

LOCK

16

01580-10806

NUT

17

01643-30823

WASHER

18

01010-81230

BOLT

19

01643-31232

WASHER

Выбрано товаров: 0