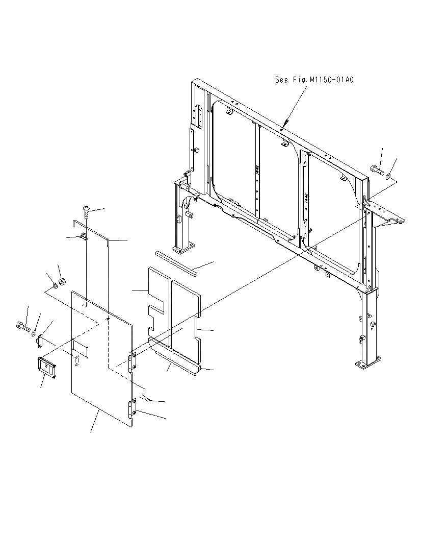
Запчасти Komatsu PC1250SP-8R ПЕРЕГОРОДКА. (КАБИНА)(COVER)(/7) M

Схема запчастей Komatsu PC1250SP-8R - ПЕРЕГОРОДКА. (КАБИНА)(COVER)(/7) M
17
18
13
12
10
15
2
16
4
8
9
7
5
3
2
14
11
6
1
FIT
1:1
100%

Артикул

Название

Примечание

Количество

1

21N-54-39341

COVER

2

21N-54-31750

SHEET

3

21N-54-32610

SHEET

4

21N-54-39541

SHEET

5

21N-54-39550

SHEET

6

21T-54-73190

HINGE, WELDED

7

205-54-53550

DOVE TAIL

8

01010-80616

BOLT

9

01643-30623

WASHER

10

21N-54-32660

BAR

11

04050-13018

PIN

12

20B-54-12210

SPRING

13

01023-10408

SCREW

14

198-54-55990

LOCK

15

01580-10806

NUT

16

01643-30823

WASHER

17

01010-81230

BOLT

18

01643-31232

WASHER

Выбрано товаров: 0