Запчасти Komatsu PC128US-2 КАПОТ (YELНИЗ.)(№8-) ЧАСТИ КОРПУСА

Схема запчастей Komatsu PC128US-2 - КАПОТ (YELНИЗ.)(№8-) ЧАСТИ КОРПУСА
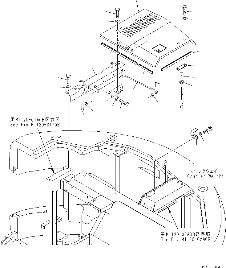
1
2
3
4
5
5A
6
6
7
7
8
9
10
11
12
13
14
15
16
17
18
19
20
21
22
FIT
1:1
100%

Артикул

Название

Примечание

Количество

|1

22B-54-19710YN

HOOD ASS'Y

1

HOOD

2

22B-54-12680

HINGE

3

22B-54-19750

SEAL

4

22B-54-19760

SEAL

5

22B-54-13790

BRACKET

5A

22B-54-18730

SEAL

6

01010-71225

BOLT

7

01643-11232

WASHER

8

22B-54-19610

BAR

9

01643-31032

WASHER

10

04050-13018

PIN,COTTER

11

01010-81225

BOLT

12

01643-31232

WASHER

13

22B-54-19840

FRAME

14

01010-81225

BOLT

15

01643-31232

WASHER

16

01643-31032

WASHER

17

04050-13018

PIN,COTTER

18

22B-54-19620

BRACKET

19

01010-81225

BOLT

20

01643-31232

WASHER

21

203-54-63830

STOPPER

22

01580-11008

NUT

Выбрано товаров: 24