Запчасти Komatsu PC128UU-1 P.P.C. ОСНОВН. ЛИНИЯ (ОСНОВН. ЛИНИЯ ПАТРУБОК) (ОТВАЛ LESS СПЕЦ-Я.)(№7-) ГИДРАВЛИКА

Схема запчастей Komatsu PC128UU-1 - P.P.C. ОСНОВН. ЛИНИЯ (ОСНОВН. ЛИНИЯ ПАТРУБОК) (ОТВАЛ LESS СПЕЦ-Я.)(№7-) ГИДРАВЛИКА
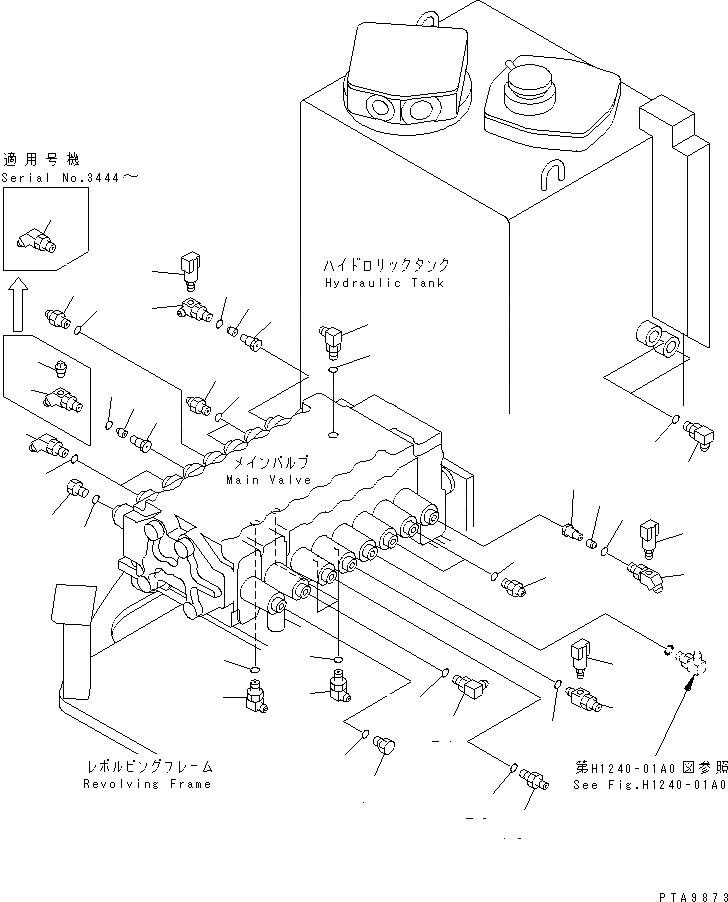
1
1
2
3
4
5
6
7
7
8
9
10
11
12
13
14
15
15
16
17
18
19
20
20
20
20
20
20
20
20
20
20
20
20
21
21
22
23
24
25
25
26
27
FIT
1:1
100%

Артикул

Название

Примечание

Количество

1

07040-11409

PLUG

|$3

21Y-60-11280

VALVE ASS'Y

2

21Y-62-11640

ELBOW

3

21Y-62-11590

PLUG

4

21Y-60-11250

POPPET

5

206-06-61130

SWITCH

5

20Y-06-21710

SWITCH

6

07236-10210

ELBOW

|$10

21Y-60-11271

VALVE ASS'Y

|$11

21Y-60-11270

VALVE ASS'Y

7

21Y-62-11651

ELBOW

7

21Y-62-11650

ELBOW

8

21Y-62-11590

PLUG

9

203-60-62320

POPPET

10

07042-A0108

PLUG

|$17

21Y-60-11290

VALVE ASS'Y

11

21Y-62-11650

ELBOW

12

21Y-62-11590

PLUG

13

21Y-60-11250

POPPET

14

206-06-61130

SWITCH

14

20Y-06-21710

SWITCH

15

203-62-63251

NIPPLE

16

07230-20210

UNION

17

21W-62-22980

TEE

18

07230-20210

UNION

19

206-06-61130

SWITCH

19

20Y-06-21710

SWITCH

20

07002-01423

O-RING

21

07235-10210

ELBOW

22

07002-01423

O-RING

23

07235-10210

ELBOW

24

07236-10210

ELBOW

25

07002-11423

O-RING

26

07235-10315

ELBOW

27

07002-02034

O-RING

Выбрано товаров: 35