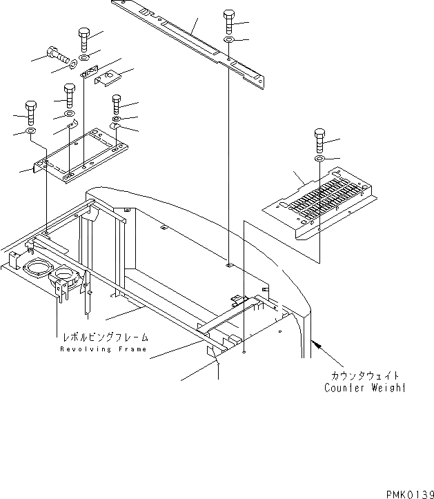
Запчасти Komatsu PC130-6 КРЫШКАВЕРХН.(№87-999) ЧАСТИ КОРПУСА

Схема запчастей Komatsu PC130-6 - КРЫШКАВЕРХН.(№87-999) ЧАСТИ КОРПУСА
1
2
3
4
5
6
7
8
9
10
11
12
13
14
15
16
17
18
19
20
21
FIT
1:1
100%

Артикул

Название

Примечание

Количество

1

203-54-66160

COVER

2

203-54-68261

PLATE

3

01010-51225

BOLT

4

01643-31232

WASHER

5

203-54-68271

PLATE

6

01010-51225

BOLT

7

01643-31232

WASHER

8

203-54-68250

BRACKET

9

01010-51225

BOLT

10

01643-31232

WASHER

11

203-54-63261

BRACKET

12

01010-51230

BOLT

13

01643-31232

WASHER

14

01010-51230

BOLT

15

01643-31232

WASHER

16

203-54-66630

COVER

17

01010-51230

BOLT

18

01643-31232

WASHER

19

203-54-66151

COVER

20

01010-51230

BOLT

21

01643-31232

WASHER

Выбрано товаров: 21