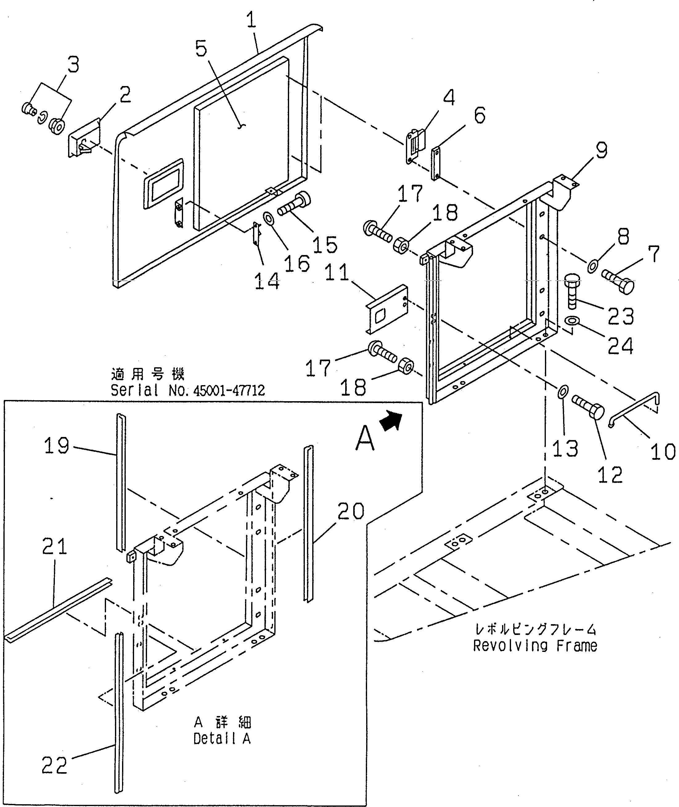
Запчасти Komatsu PC130-6 ДВЕРЬ ПРАВ.(№9-8) ЧАСТИ КОРПУСА

Схема запчастей Komatsu PC130-6 - ДВЕРЬ ПРАВ.(№9-8) ЧАСТИ КОРПУСА
FIT
1:1
100%

Артикул

Название

Примечание

Количество

1

203-54-63970

COVER,R.H.

2

421-54-11372

LOCK ASS'Y (WELDED)

3

421-54-11381

LOCK

4

203-54-62180

HINGE (WELDED)

5

203-54-62261

SHEET

6

203-54-62190

PLATE

7

01010-51235

BOLT

8

01643-31232

WASHER

9

203-54-63740

FRAME

10

20Y-54-29232

BAR

11

203-54-63130

PLATE

12

01010-51220

BOLT

13

01643-31232

WASHER

14

203-54-63750

BRACKET

15

01010-50616

BOLT

16

01643-30623

WASHER

17

203-54-63830

STOPPER

18

01580-11008

NUT

19

20Y-54-29261

SEAL

20

203-54-63251

SEAL

21

203-54-63241

SEAL

22

09412-00006

SEAL

23

01010-51230

BOLT

24

01643-31232

WASHER

Выбрано товаров: 24